Công trình nhà 2 tầng hiện đại của Anh Chị Hùng Hường tại Xã Cẩm Xuyên, Tỉnh Hà Tĩnh là một trong những thiết kế tiêu biểu do Công ty TNHH Tư vấn Thiết kế Xây dựng QA HOME thực hiện trong năm 2025. Với diện tích 5x20m và tổng mức đầu tư 1.25 tỷ đồng, công trình thể hiện rõ phong cách kiến trúc hiện đại, tối giản và chú trọng công năng sử dụng thực tế.
Dự án được thiết kế theo gói đặc biệt – 250.000đ/m², đảm bảo tính thẩm mỹ cao, vật liệu bền đẹp và giải pháp thi công tối ưu, phù hợp điều kiện khí hậu miền Trung. LIÊN HỆ NGAY ĐỂ ĐƯỢC ƯU ĐÃI
Chi Tiết Dự Án Nhà 2 Tầng Hiện Đại – Anh Chị Hùng Hường, Xã Cẩm Xuyên, Hà Tĩnh
Ngoại thất – Mặt tiền hiện đại, thanh thoát và tinh tế
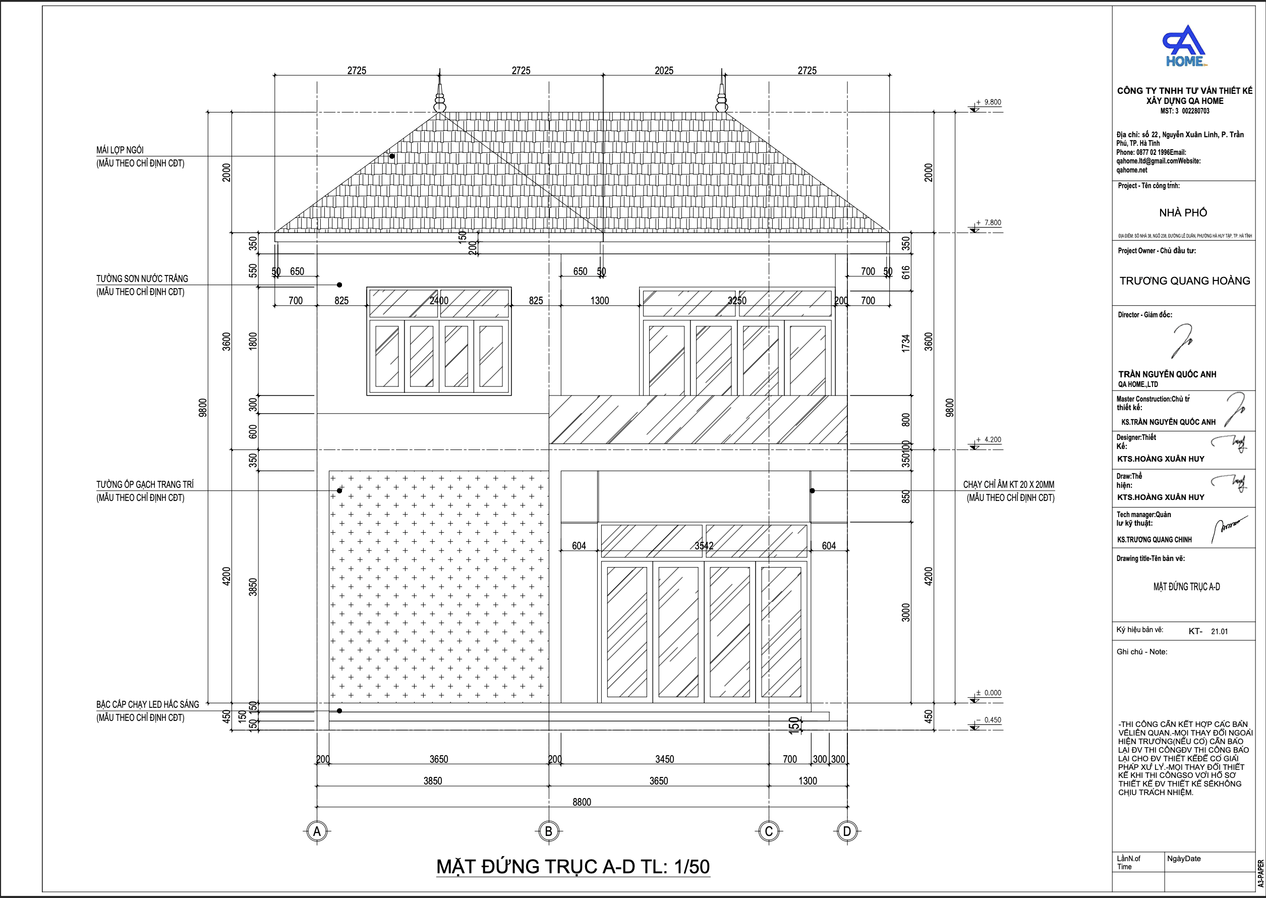
Mặt tiền ngôi nhà gây ấn tượng mạnh mẽ với thiết kế mái Nhật đổ dốc nhẹ, mang đến tổng thể cân đối, thanh thoát và phù hợp với khí hậu miền Trung. Hệ mái được thiết kế có độ dốc vừa phải, cấu tạo gồm xà gồ sắt hộp mạ kẽm 70x140mm, cầu phong 50x100mm và li tô 30x30mm, đảm bảo độ bền và khả năng thoát nước nhanh. Phía trên lợp ngói màu ghi sẫm cao cấp, giúp công trình giữ được nét hiện đại mà vẫn sang trọng, đồng thời giảm hấp thụ nhiệt, giúp không gian bên trong luôn mát mẻ.
>>>>> Xem thêm: Dự Án Nhà 2 Tầng Mái Nhật Hiện Đại Lai Tân Cổ Điển I Bác Nguyễn Đình Lê
Toàn bộ hình khối kiến trúc mặt tiền được tổ chức theo nguyên tắc mảng đặc – rỗng rõ ràng, trong đó tầng 1 là khối đế vững chắc, sử dụng gạch ốp granite vân đá tự nhiên tạo cảm giác kiên cố. Tầng 2 được mở rộng khối ban công ra phía trước 0.8m, kết hợp cùng lan can kính cường lực 12mm và tay vịn inox 304, tạo nên sự nhẹ nhàng, hiện đại mà không phá vỡ tính cân bằng tổng thể.



Tông màu trắng sáng chủ đạo của sơn ngoại thất kết hợp mảng ốp gỗ nhựa ngoài trời ở trần hiên và logia giúp mặt tiền trở nên nổi bật và ấm áp hơn. Các chi tiết phào chỉ âm chạy ngang được xử lý tinh tế, giúp mặt đứng có chiều sâu và điểm nhấn thị giác mà không cần quá nhiều chi tiết rườm rà.
Hệ cửa nhôm kính Xingfa hệ 55 màu đen mờ, kết hợp kính cường lực 10mm, không chỉ giúp lấy sáng tự nhiên tối đa mà còn tăng tính thẩm mỹ, mang đến cảm giác sang trọng và thông thoáng. Ánh sáng tự nhiên xuyên qua các khung cửa lớn tạo nên hiệu ứng bóng đổ đẹp mắt, giúp ngôi nhà luôn tràn đầy sinh khí.

Khu ban công tầng 2 là điểm nhấn mềm mại cho toàn bộ công trình. Giàn hoa treo khung thép hộp sơn tĩnh điện đen, kết hợp các chậu cây xanh và hoa rủ, tạo nên mảng xanh sinh động và gần gũi với thiên nhiên. Khi hoàng hôn buông xuống, hệ đèn LED âm trần ánh vàng ấm 3000K chiếu sáng khéo léo các góc khối kiến trúc, làm nổi bật đường nét hiện đại, sang trọng của ngôi nhà.
Nhờ cách phối hợp hài hòa giữa tỷ lệ hình khối, màu sắc và vật liệu, công trình mang đậm tinh thần kiến trúc hiện đại châu Á, vừa trẻ trung, vừa gần gũi, và đặc biệt phù hợp với gu thẩm mỹ của gia chủ yêu thích phong cách tinh tế, nhẹ nhàng mà vẫn bền vững theo thời gian.
Tổng quan kiến trúc – Phong cách hiện đại trẻ trung
Ngôi nhà mang phong cách kiến trúc hiện đại, với hình khối vuông vức, đường nét mạnh mẽ và mạch lạc. Mặt tiền được tổ chức theo bố cục ngang – dọc rõ ràng, không sử dụng quá nhiều chi tiết phào chỉ mà tập trung vào mảng khối, màu sắc và vật liệu tương phản.
Toàn bộ công trình nổi bật với gam màu trắng sáng chủ đạo, nhấn nhá bằng gạch ốp trang trí giả gỗ và lam nhôm sơn đen mờ, tạo chiều sâu và sự sang trọng cho mặt đứng.
>>>>> Xem thêm: Dự án thiết kế nhà phố khác do QA HOME thiết kế
Hệ cửa nhôm kính Xingfa được bố trí xuyên suốt các tầng, không chỉ mang lại vẻ đẹp hiện đại mà còn giúp tăng khả năng lấy sáng, đối lưu không khí và kết nối không gian trong – ngoài. Kính cường lực dày 10mm chống ồn, cách nhiệt tốt, phù hợp khí hậu khắc nghiệt vùng biển Hà Tĩnh.
Phần ban công tầng 2 được thiết kế lan can kính cường lực, tay vịn inox, tạo cảm giác thanh thoát và mở rộng tầm nhìn.
Hệ mái bằng đổ bê tông cốt thép, kết hợp lam bê tông trang trí và hệ thống đèn chiếu sáng âm trần, giúp tổng thể công trình thêm phần hiện đại và nổi bật khi về đêm.


Công năng sử dụng khoa học, tối ưu diện tích
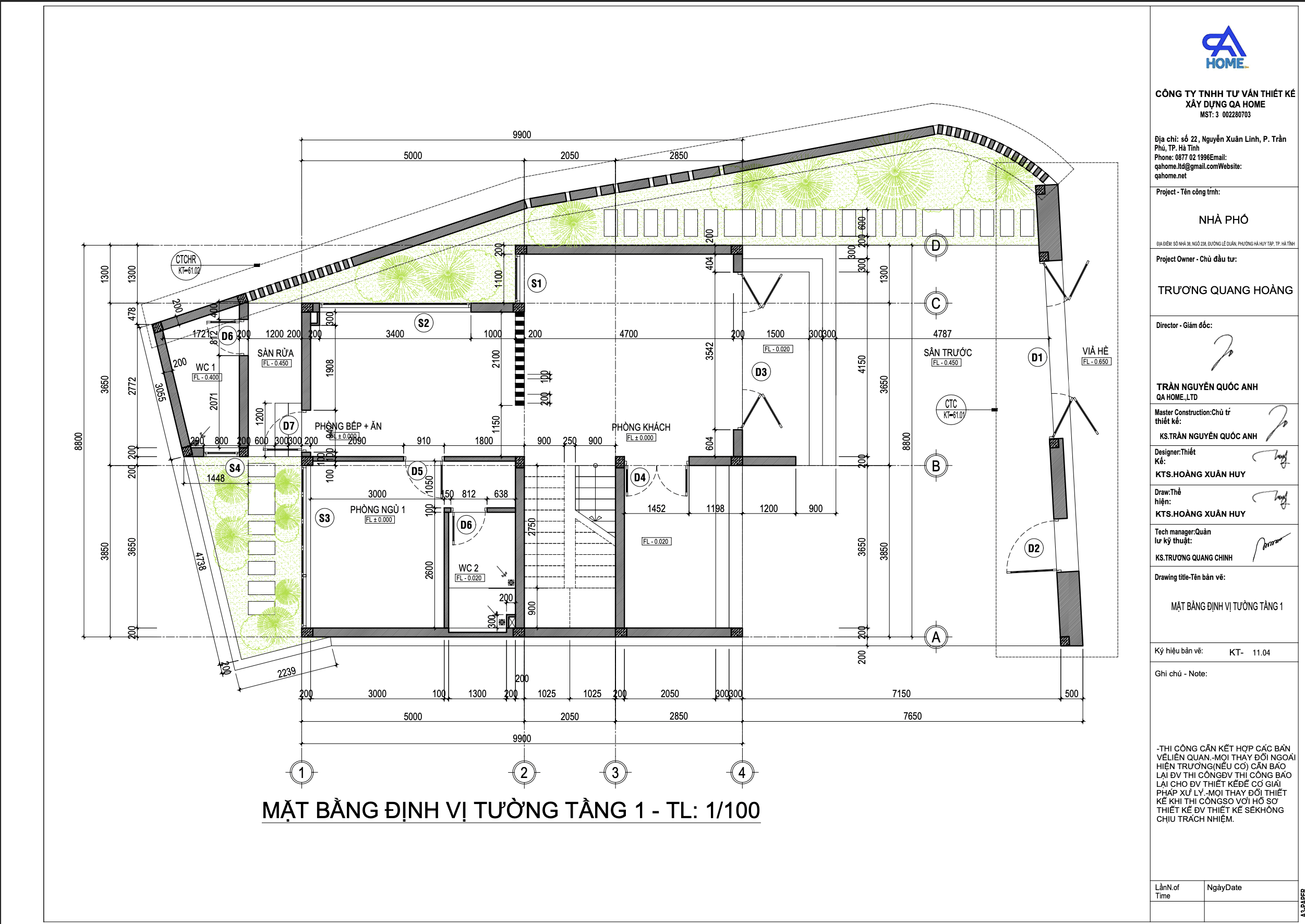
Tầng 1:
Không gian tầng 1 được quy hoạch khoa học, thuận tiện cho sinh hoạt hàng ngày của gia đình.
-
Phòng khách: Đặt ngay sảnh chính, rộng rãi, liên thông với khu bếp – ăn, tạo không gian mở và thông thoáng. Nền lát gạch granite bóng 800x800mm, kết hợp hệ trần phẳng thạch cao sơn trắng, đèn LED âm trần ánh sáng trung tính.
-
Phòng bếp + ăn: Bố trí cuối nhà, đảm bảo sự riêng tư mà vẫn thông thoáng nhờ cửa phụ mở ra sân rửa. Bếp thiết kế theo hình chữ L, mặt đá tự nhiên đen kim sa, tủ bếp gỗ công nghiệp MDF chống ẩm phủ melamine sáng màu.
-
Phòng ngủ Master: Nằm gọn ở góc cuối tầng, có WC khép kín và cửa sổ hướng ra sân sau, mang lại cảm giác yên tĩnh, riêng tư. Không gian được ốp gỗ ấm áp, kết hợp rèm 2 lớp và ánh sáng tự nhiên chan hòa.
-
WC chung: Đặt cạnh khu bếp, tường ốp gạch men 300x600mm, sàn chống trượt, có đầy đủ lavabo, bồn cầu, vòi sen.
-
Sân rửa & sân trước: Được lát gạch granite chống trơn, có phễu thu nước âm, lớp chống thấm Sika phủ toàn diện đảm bảo độ bền lâu dài.

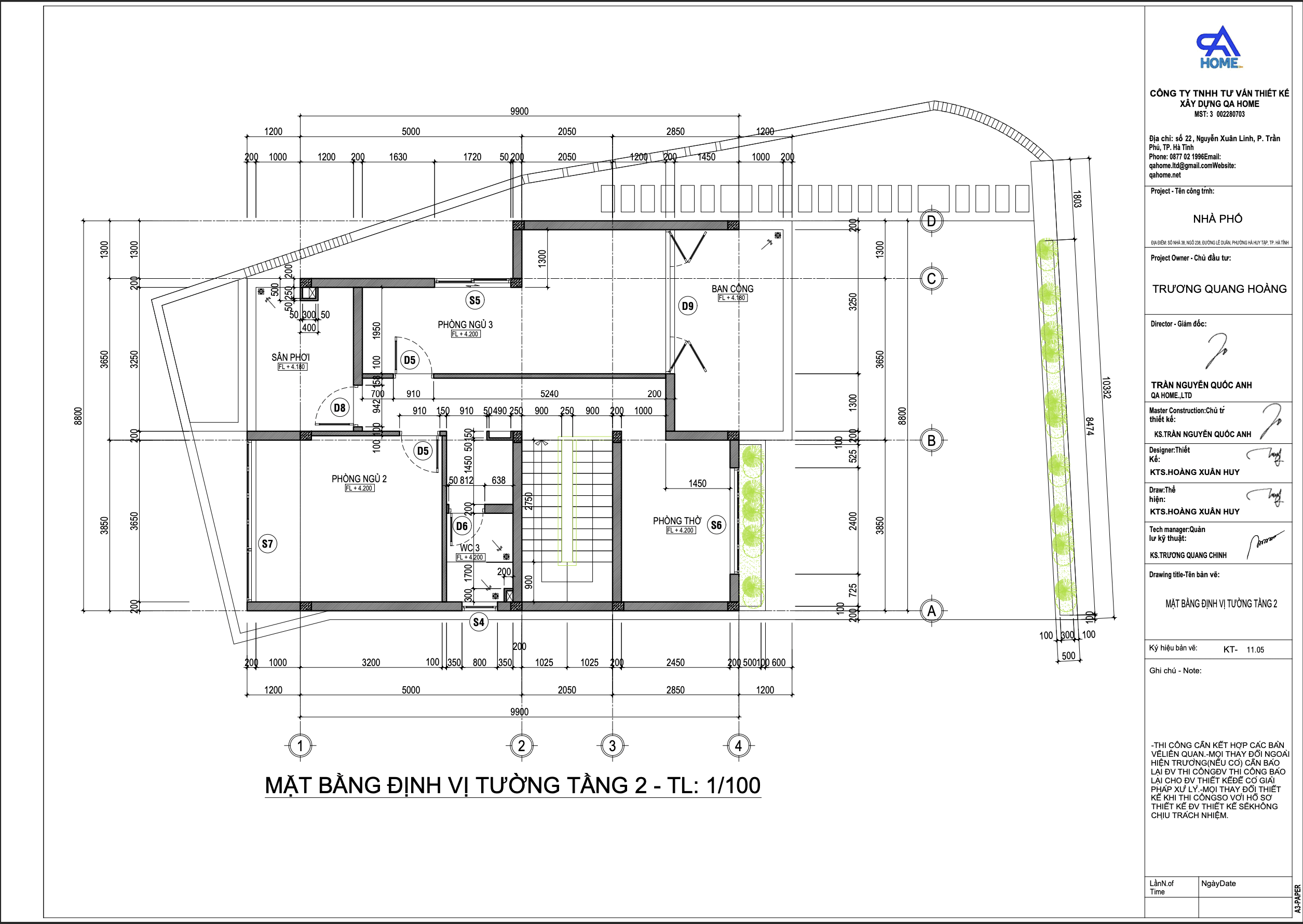
Tầng 2:
Tầng 2 là không gian nghỉ ngơi và sinh hoạt chung của cả gia đình.
-
Phòng thờ: Bố trí hướng ban công, thông thoáng, hợp phong thủy, thể hiện sự trang nghiêm và tôn kính tổ tiên.
-
Hai phòng ngủ: Thiết kế cân đối hai bên cầu thang, đều có cửa sổ lớn lấy sáng và đón gió tự nhiên.
-
Phòng sinh hoạt chung (SHC): Là nơi thư giãn, đọc sách hoặc trò chuyện của các thành viên. Khu vực này có thể linh hoạt chuyển đổi thành phòng làm việc nhỏ hoặc không gian đọc.
-
WC chung: Bố trí gọn gàng, sử dụng thiết bị vệ sinh cao cấp, tông màu sáng, dễ vệ sinh.
-
Sân phơi: Thiết kế kín đáo phía sau nhà, đảm bảo thông thoáng, dễ sử dụng và thẩm mỹ.
-
Ban công: Lát gạch chống trượt 600x600mm, lan can kính cường lực, đèn hắt tường ánh vàng, tạo điểm nhấn cho mặt tiền khi về đêm.

Tỷ lệ hình khối và bố cục mặt đứng – Chuẩn mực trong kiến trúc hiện đại
Tổng thể mặt đứng công trình được kiến trúc sư QA HOME nghiên cứu kỹ về tỷ lệ hình khối và mảng đặc – rỗng, đảm bảo tính hài hòa giữa thẩm mỹ và công năng.
Khối tầng 1 được xử lý chắc chắn, vuông vức với mảng tường phẳng sơn nước ngoại thất Jotun WeatherShield, tạo cảm giác vững chãi cho phần đế công trình. Trong khi đó, tầng 2 được đưa khối ban công và mái đua nhẹ ra phía trước 0.8m, giúp tăng chiều sâu cho mặt tiền, đồng thời che nắng, chắn mưa hiệu quả cho khu vực tầng trệt.
>>>>>> Xem thêm: Các dự án thiết kế của QA Home


Sự tương phản giữa mảng tường trắng sáng và vật liệu ốp gạch granite vân đá màu ghi xám được tính toán dựa trên tỷ lệ thị giác 1:1.618 (tỷ lệ vàng) – nguyên lý được ứng dụng phổ biến trong kiến trúc hiện đại để đảm bảo cân đối và thu hút ánh nhìn.
Hệ thống phào chỉ ngang 20x40mm chạy quanh tầng mái không chỉ mang yếu tố trang trí mà còn giúp định hình rõ khối mái, tạo điểm ngắt nhịp hợp lý giữa thân và đỉnh công trình. Nhờ cách xử lý hình khối thông minh, công trình vừa mang vẻ khỏe khoắn, vừa giữ được sự mềm mại đặc trưng của phong cách mái Nhật.
Vật liệu và chi tiết hoàn thiện – Nâng tầm giá trị thẩm mỹ
Điểm nhấn đặc biệt của công trình nằm ở sự chọn lọc vật liệu hoàn thiện cao cấp, vừa đảm bảo độ bền với thời tiết miền Trung, vừa tạo hiệu ứng thẩm mỹ tinh tế.
-
Tường ngoại thất: Sử dụng sơn chống thấm 2 lớp, phủ màu trắng sứ 1095 kết hợp sơn nhấn ghi đậm tại các mảng lam, giúp bề mặt luôn sạch, chống bám bụi và giữ màu ổn định trên 10 năm.
-
Trần hiên và logia: Ốp gỗ nhựa Composite vân Walnut chống ẩm, bề mặt phủ UV chống phai màu, vừa tăng tính sang trọng, vừa có khả năng cách nhiệt tốt.
-
Cửa chính và cửa ban công: Dùng hệ nhôm Xingfa hệ 55 – kính cường lực 10mm; khung nhôm sơn tĩnh điện đen mờ, bản lề âm giảm chấn, đảm bảo độ kín khít, chống ồn, chống bụi.
-
Lan can kính: Kính cường lực 12mm, liên kết bằng pad inox 304; tay vịn inox mờ được gia công CNC sắc nét, đảm bảo an toàn và thẩm mỹ.
-
Hệ thống chiếu sáng: Sử dụng đèn LED âm trần IP65 và đèn hắt tường công suất 5W, ánh sáng ấm 3000K giúp công trình nổi bật ban đêm nhưng vẫn giữ được cảm giác dễ chịu, tiết kiệm điện năng.
Bên cạnh đó, khu ban công được tích hợp mái pergola khung thép hộp 50x100mm sơn tĩnh điện màu đen, bên trên lợp polycarbonate trắng sữa giúp che nắng mưa nhẹ mà vẫn lấy sáng tự nhiên. Dàn hoa treo cùng tiểu cảnh xanh phía lan can giúp công trình có chiều sâu, mềm mại và gần gũi hơn với thiên nhiên.

Phòng ngủ Master – Hiện đại, ấm cúng và đầy cảm xúc
Không gian phòng ngủ Master được thiết kế theo phong cách hiện đại pha nét tối giản sang trọng, sử dụng bảng màu trung tính gồm xám – nâu – trắng làm chủ đạo. Sự phối hợp khéo léo giữa các gam màu này tạo nên hiệu ứng cân bằng thị giác, mang lại cảm giác thư giãn, yên tĩnh và tinh tế cho gia chủ sau mỗi ngày dài làm việc.
Giường ngủ bọc nỉ cao cấp với đường nét bo tròn mềm mại, kết hợp vách đầu giường ốp lam chỉ đen chạy dọc mang đến chiều sâu và điểm nhấn mạnh về trục đứng cho không gian. Chất liệu nỉ và gỗ veneer phối hợp hài hòa, vừa tạo cảm giác ấm áp vừa tôn lên phong cách hiện đại, thanh lịch.
Hệ cửa sổ kính khổ lớn cho phép ánh sáng tự nhiên tràn ngập vào ban ngày, kết hợp rèm hai lớp giúp điều tiết ánh sáng linh hoạt, tạo cảm giác riêng tư khi cần thiết. Bố cục nội thất được tổ chức chặt chẽ: tab đầu giường nhỏ gọn, đèn ngủ kiểu dáng tối giản, và sàn gỗ tông nâu nhạt đồng bộ, tạo nên tổng thể sang trọng mà vẫn gần gũi.
Từng chi tiết đều hướng đến trải nghiệm nghỉ ngơi cao cấp, nơi người sử dụng cảm nhận được sự ấm cúng, tiện nghi và cảm xúc thư giãn trọn vẹn trong không gian riêng tư của mình.

Góc làm việc – Gọn gàng, tiện nghi và truyền cảm hứng sáng tạo
Khu vực góc làm việc được bố trí liền kề cửa sổ lớn, tận dụng ánh sáng tự nhiên dồi dào – yếu tố quan trọng giúp tăng hiệu suất và cảm hứng sáng tạo. Bàn làm việc bằng gỗ veneer tông nâu trầm kết hợp ghế xoay công thái học, vừa đảm bảo công năng, vừa tạo cảm giác thoải mái khi sử dụng lâu dài.
Trên bàn được sắp đặt tinh tế với bình hoa nhỏ, gương tròn nghệ thuật, và đèn bàn ánh sáng vàng dịu, tất cả đều mang tính trang trí nhẹ nhàng nhưng góp phần làm mềm không gian làm việc. Phía trên là bức tranh nghệ thuật trừu tượng cùng vách ốp gỗ chạy dọc, giúp không gian có chiều sâu và điểm nhấn thị giác rõ ràng.
Tổng thể khu vực này được xử lý bố cục hợp lý, đảm bảo sự thông thoáng, ngăn nắp và thẩm mỹ, tạo nên một góc làm việc lý tưởng – nơi công năng và cảm xúc được kết nối hài hòa.

Hệ tủ quần áo âm tường – Tối ưu diện tích, nâng tầm thẩm mỹ
Hệ tủ quần áo âm tường cao kịch trần là giải pháp thiết kế thông minh, vừa tối ưu diện tích vừa đảm bảo tính thẩm mỹ liền mạch cho không gian. Cánh tủ sử dụng kính mờ sọc đứng kết hợp khung viền nhôm ánh vàng champagne, tạo cảm giác sang trọng, đồng thời giúp phản chiếu ánh sáng nhẹ, mở rộng không gian theo chiều sâu.
Đèn LED hắt sáng âm bên trong tủ không chỉ mang lại hiệu ứng lung linh khi mở cửa mà còn giúp người dùng dễ dàng quan sát và lựa chọn trang phục. Thiết kế cửa lùa ray êm giúp tiết kiệm diện tích sử dụng, tránh vướng víu khi mở, rất phù hợp cho không gian phòng ngủ hiện đại.

Tủ được chia khoang khoa học: khu vực treo đồ dài – ngắn riêng biệt, ngăn kéo phụ kiện và kệ trưng bày túi xách, đồng hồ. Mọi chi tiết đều hướng đến trải nghiệm tiện nghi và sang trọng, đồng thời giữ cho căn phòng luôn gọn gàng, tinh tế và thoáng đãng.
QA Home – Kiến tạo tổ ấm từ trái tim, đồng hành bằng trách nhiệm
QA Home không chỉ là đơn vị thiết kế và thi công nội thất chuyên nghiệp, mà còn là người bạn đồng hành đáng tin cậy trong hành trình xây dựng tổ ấm mơ ước cho mỗi gia đình Việt. Với triết lý “Kiến tạo tổ ấm từ trái tim”, chúng tôi đặt cảm xúc và sự thấu hiểu khách hàng làm trung tâm trong mọi thiết kế. Mỗi công trình do QA Home thực hiện đều mang dấu ấn riêng, phản ánh phong cách sống, giá trị cá nhân và không gian sống lý tưởng của gia chủ.
Bên cạnh yếu tố thẩm mỹ, QA Home cam kết trách nhiệm từ khâu tư vấn đến thi công hoàn thiện, đảm bảo tiến độ, chất lượng và sự hài lòng tuyệt đối cho khách hàng. Chính sự tận tâm và trách nhiệm đó đã làm nên thương hiệu QA Home – nơi gửi gắm niềm tin để xây dựng không gian sống hạnh phúc và bền vững.
Nếu bạn cần thêm thông tin hoặc tư vấn chi tiết, hãy liên hệ với chúng tôi để được hỗ trợ tốt nhất! GỌI NGAY CHO CHÚNG TÔI nếu bạn đang tìm kiếm một giải pháp thiết kế nội thất hoàn hảo, hãy liên hệ với chúng tôi ngay hôm nay để được tư vấn và hỗ trợ tốt nhất!
Công ty TNHH Tư Vấn Thiết Kế & Xây Dựng QA Home
Địa chỉ trụ sở chính: Số 10A, Ngõ 2, Đ. Trần Phú, Phường. Thành Sen, Tỉnh. Hà Tĩnh
CN TP. HCM: 25/22 Tôn Thất Tùng, phường Bến Thành, TP. Hồ Chí Minh
CN Cẩm Xuyên: Số 240 Hà Huy Tập, Cẩm Xuyên, Hà Tĩnh
Đường dây nóng: 0877021996


