Trong hành trình kiến tạo những không gian sống bền vững và tinh tế, QA HOME tiếp tục mang đến một công trình ấn tượng – ngôi nhà 2 tầng mái Nhật hiện đại lai tân cổ điển của bác Nguyễn Đình Lê tại xã Trung Lộc, huyện Can Lộc, tỉnh Hà Tĩnh. Với tổng diện tích 8×13.65m, công trình là sự kết hợp hoàn hảo giữa nét đẹp sang trọng, tinh tế của kiến trúc tân cổ điển và sự tối giản, tiện nghi trong bố trí không gian hiện đại – đáp ứng trọn vẹn nhu cầu sống của gia đình Việt hôm nay. LIÊN HỆ NGAY ĐỂ ĐƯỢC ƯU ĐÃI
| Hạng mục | Nội dung chi tiết |
|---|---|
| Chủ đầu tư | Bác Nguyễn Đình Lê |
| Địa điểm xây dựng | Xã Trung Lộc, Huyện Can Lộc, Tỉnh Hà Tĩnh |
| Diện tích thiết kế | 8 x 13.65m |
| Tổng mức đầu tư | 1.4 tỷ đồng |
| Phong cách kiến trúc | Nhà 2 tầng mái Nhật hiện đại lai tân cổ điển – sang trọng, tinh tế và cân đối về hình khối. |
| Đơn vị thiết kế & thi công | Công ty TNHH Tư vấn Thiết kế Xây dựng QA HOME |
| Kiến trúc sư chủ trì | KTS. Hoàng Xuân Huy |
| Gói thiết kế | Gói 01 – 150.000đ/m² |
| Thời gian khởi công | Tháng 6/2025 |
| Thời gian hoàn thành | Tháng 12/2025 |
Nhà 2 Tầng Mái Nhật Hiện Đại Lai Tân Cổ Điển – Dấu ấn của sự tinh tế và chuẩn mực sống sang
Mẫu nhà 2 tầng mái Nhật hiện đại lai tân cổ điển là sự kết hợp hoàn hảo giữa vẻ đẹp mềm mại của kiến trúc Á Đông và nét thanh lịch, sang trọng đặc trưng của phong cách châu Âu. Đây chính là lựa chọn lý tưởng cho những gia chủ yêu thích sự cân bằng giữa truyền thống và hiện đại, giữa tính thẩm mỹ và công năng sống tiện nghi.
Công trình gây ấn tượng với hệ mái Nhật dốc nhẹ, giật cấp tinh tế, vừa đảm bảo công năng che nắng – thoát nước, vừa mang lại vẻ thanh thoát, bề thế cho tổng thể ngôi nhà. Các đường phào chỉ tinh tế, cột vuông vững chãi, kết hợp cùng tông màu trắng kem – ghi xám hài hòa giúp công trình toát lên vẻ sang trọng mà không cầu kỳ.
Phong cách lai tân cổ điển được thể hiện nhẹ nhàng qua cách xử lý mảng khối và chi tiết, tạo nên dáng vẻ trang nhã, mềm mại nhưng vẫn giữ nét mạnh mẽ, hiện đại. Bên cạnh đó, hệ cửa kính lớn và ban công thoáng mở giúp không gian trong nhà luôn tràn ngập ánh sáng tự nhiên, đem lại cảm giác ấm cúng, dễ chịu.

Ngoại thất sang trọng – Kiến trúc tinh tế, bền vững theo thời gian
Ngay từ cái nhìn đầu tiên, ngôi nhà gây ấn tượng với hệ mái Nhật dốc nhẹ, đổ bê tông dán ngói cao cấp, vừa mang tính thẩm mỹ cao vừa chống nóng, thoát nước hiệu quả – phù hợp khí hậu miền Trung. Tông màu trắng kem chủ đạo kết hợp với xám ghi thanh lịch tạo nên diện mạo hiện đại, trang nhã nhưng vẫn toát lên vẻ bề thế, vững chãi.
Điểm nhấn của công trình là hệ cột vuông khỏe khoắn, phào chỉ tinh tế và các mảng tường ốp đá tự nhiên tạo cảm giác sang trọng, đậm chất tân cổ điển. Hệ thống cửa nhôm kính Xingfa kết hợp gỗ nâu tự nhiên giúp không gian luôn ngập tràn ánh sáng, kết nối hài hòa giữa trong và ngoài. Phần ban công kính cường lực mở rộng tầm nhìn, tạo cảm giác thoáng đãng, nhẹ nhàng cho tổng thể ngôi nhà.
Không chỉ là nơi ở, đây còn là công trình thể hiện gu thẩm mỹ tinh tế và vị thế sống đẳng cấp của gia chủ – một người yêu sự giản dị nhưng vẫn đề cao giá trị bền vững và tinh tế.
>>>>> Xem thêm: Dự án thiết kế nhà phố khác do QA HOME thiết kế

Công năng sử dụng khoa học – Không gian sống tiện nghi, tối ưu
QA HOME đã bố trí công năng hợp lý, đảm bảo sự tiện nghi, riêng tư và thuận tiện cho sinh hoạt của từng thành viên trong gia đình:
-
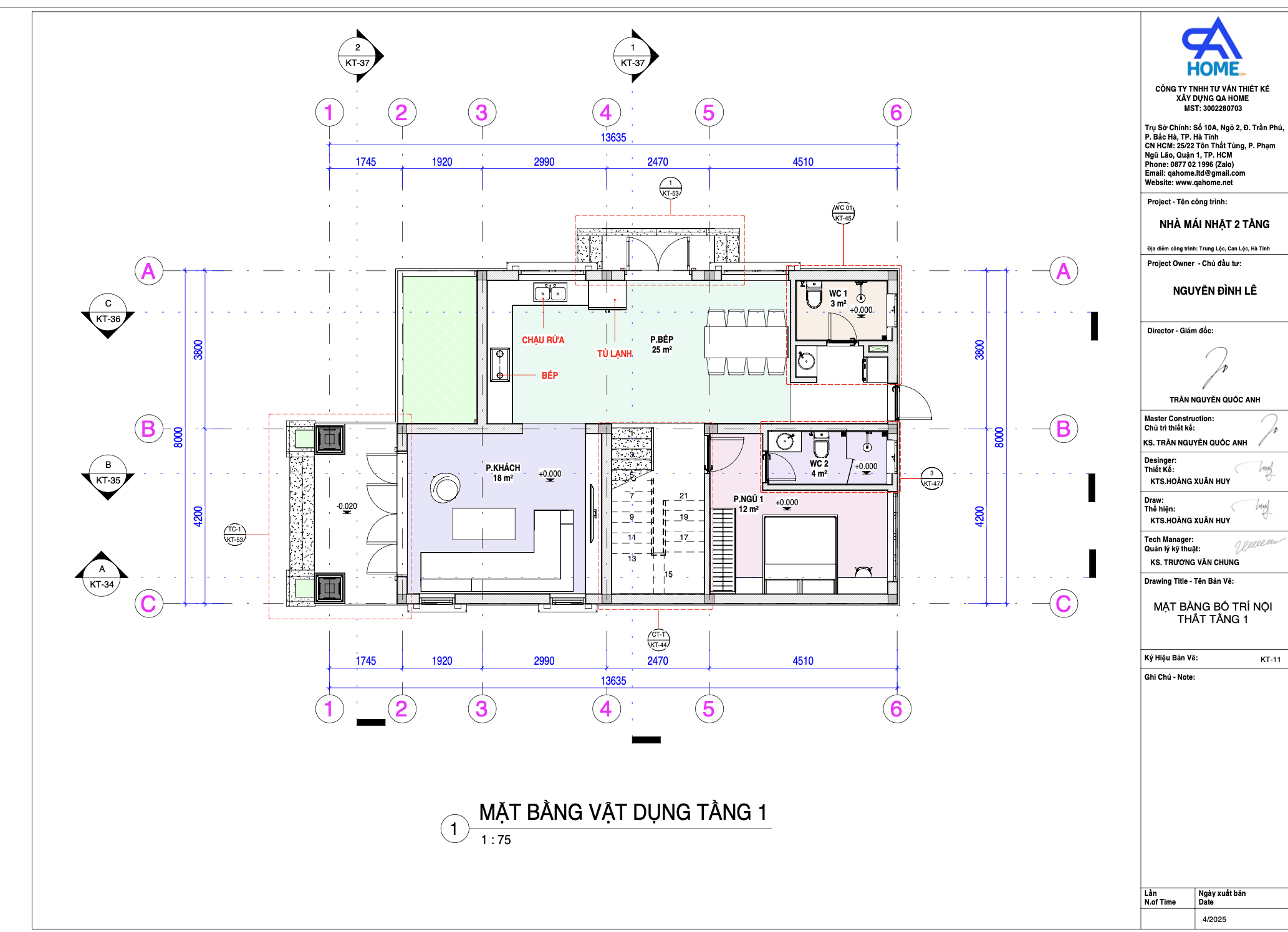
Tầng 1: Gồm phòng khách rộng rãi, kết nối liền mạch với phòng bếp – ăn, tạo không gian mở hiện đại, thuận tiện cho sinh hoạt và gắn kết gia đình. Một phòng ngủ Master được bố trí yên tĩnh, có tầm nhìn hướng sân vườn. Phía sau là khu WC chung, sân rửa và lối ra sân sau, đảm bảo sự thông thoáng, tiện lợi trong sử dụng. Phía trước nhà là sân vườn và khoảng sân rộng dùng để đón khách, để xe hoặc tổ chức các buổi sum họp ngoài trời.


-
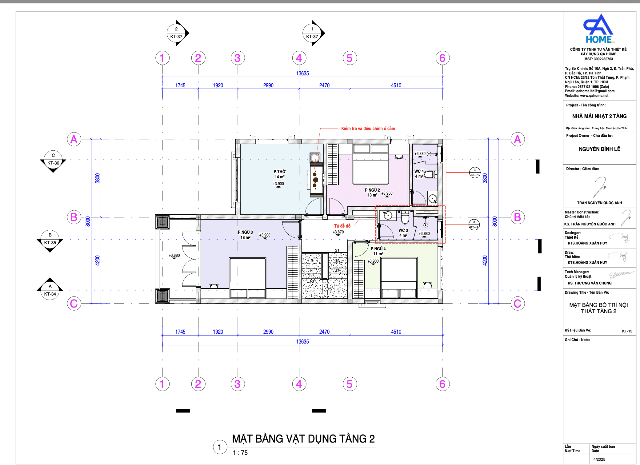
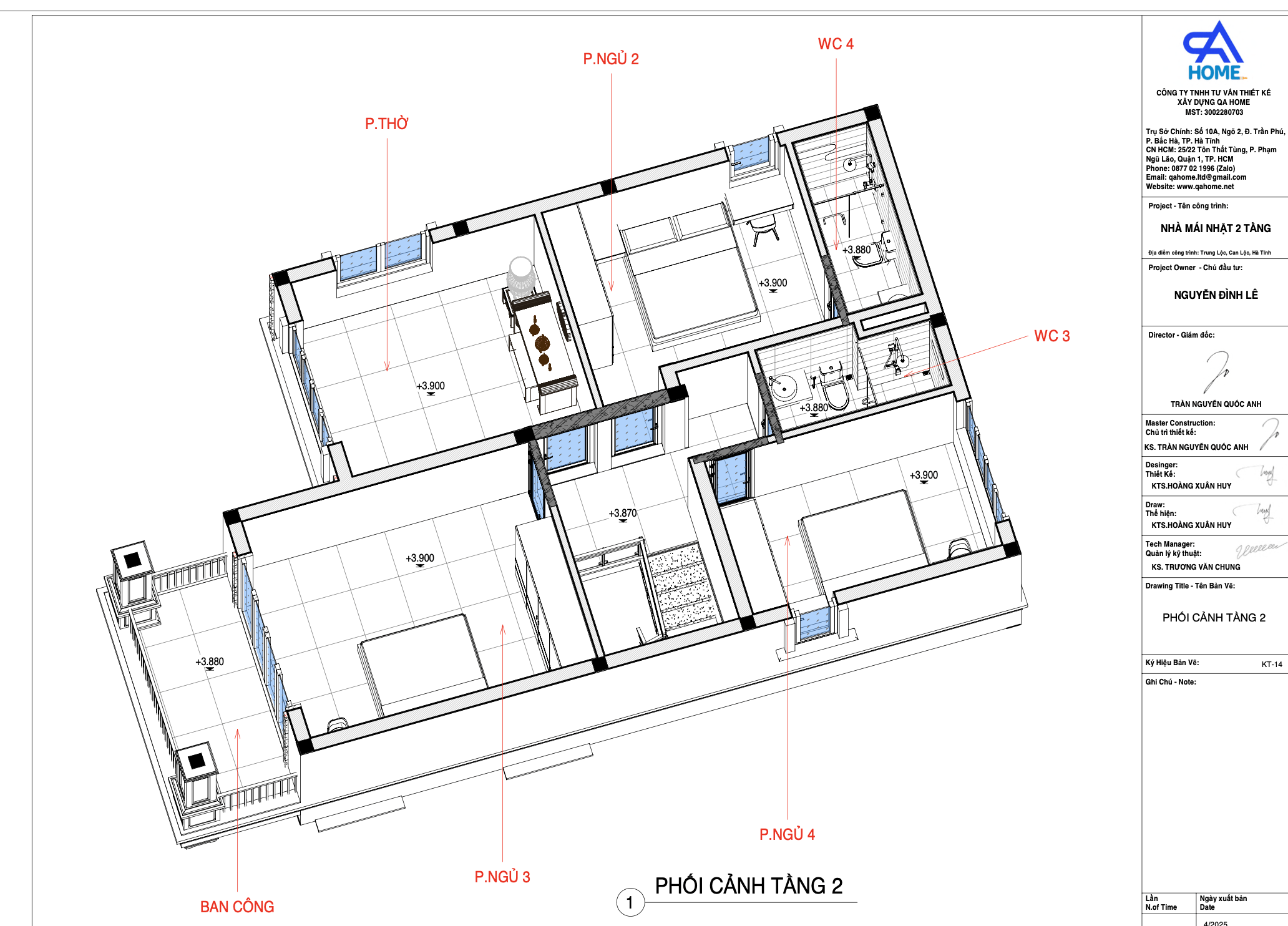
Tầng 2: Bố trí phòng thờ trang nghiêm hướng hợp phong thủy, cùng hai phòng ngủ thường và một phòng Master có WC riêng, đảm bảo sự riêng tư và thoải mái cho từng thành viên. Ngoài ra, tầng hai còn có WC chung, sân phơi và ban công lớn – nơi gia chủ có thể tận hưởng không khí trong lành mỗi sáng.


Mỗi không gian đều được tính toán kỹ lưỡng theo phong thủy, hướng gió, hướng nắng, vừa đảm bảo thẩm mỹ, vừa mang lại năng lượng tích cực và may mắn cho ngôi nhà.
>>>>>> Xem thêm: Các dự án thiết kế của QA Home
Phối cảnh mặt tiền – Vẻ đẹp sang trọng, chuẩn mực trong từng chi tiết kiến trúc
Phối cảnh mặt tiền ngôi nhà 2 tầng mái Nhật của bác Nguyễn Đình Lê là minh chứng rõ nét cho sự tinh tế trong tư duy thiết kế của QA HOME – nơi từng đường nét, mảng khối đều được tính toán cẩn thận để vừa đảm bảo tính thẩm mỹ, vừa thể hiện gu sống hiện đại của gia chủ.
Công trình sử dụng tông màu trắng kem chủ đạo, kết hợp xám ghi nhấn mạnh phần chân tường và mái ngói, tạo nên một diện mạo hài hòa, sang trọng nhưng vẫn gần gũi. Hệ cột vuông mạnh mẽ kết hợp với phào chỉ nổi nhẹ ở phần đầu cột và viền mái giúp công trình giữ được nét thanh thoát của kiến trúc hiện đại nhưng vẫn gợi nhắc dáng dấp tân cổ điển quý phái.
Phần mặt tiền tầng trệt được ốp đá granite tối màu, vừa tăng tính thẩm mỹ, vừa chống bám bẩn, chống ẩm mốc hiệu quả. Tầng hai nổi bật với ban công kính cường lực khung đen, cửa nhôm Xingfa cao cấp mở rộng tầm nhìn ra không gian bên ngoài, giúp tổng thể công trình thêm phần thanh thoát và hiện đại.
Bước qua hiên nhà, cảm giác đầu tiên là sự bề thế nhưng không phô trương – từng chi tiết đều được sắp đặt có dụng ý, thể hiện sự chỉn chu, tinh tế và chuẩn gu thẩm mỹ của gia chủ.
Ngôi nhà không chỉ là một công trình kiến trúc, mà còn là tuyên ngôn của chất sống tinh tế – nơi vẻ đẹp hiện đại hòa quyện trong hơi thở tân cổ điển trang nhã.

Phối cảnh tổng thể – Bố cục hài hòa, phong thủy vững vàng, không gian mở đón nắng gió
Nhìn từ trên cao, tổng thể công trình hiện lên hài hòa giữa hình khối kiến trúc và cảnh quan xung quanh. Ngôi nhà 2 tầng mái Nhật được bố trí trong khuôn viên vuông vức, có khoảng sân trước thoáng rộng, lối đi lát gạch chống trượt kết nối với cổng chính, đảm bảo vừa thẩm mỹ vừa thuận tiện di chuyển.
Hệ mái Nhật giật cấp được thiết kế đan xen nhịp nhàng, tạo điểm nhấn nổi bật khi nhìn từ mọi góc độ. Các lớp mái đổ rộng, chồng lớp tinh tế không chỉ làm nên vẻ đẹp thanh thoát mà còn giúp che nắng, thoát nước mưa cực kỳ hiệu quả – đặc biệt phù hợp với điều kiện thời tiết miền Trung.
Công trình được bao quanh bởi hệ cây xanh và thảm cỏ được bố trí hợp lý, vừa làm dịu không gian, vừa giúp điều hòa không khí, mang lại cảm giác trong lành, mát mẻ. Từ phối cảnh tổng thể, ta có thể thấy rõ triết lý thiết kế mà QA HOME luôn hướng tới – kiến trúc gắn liền thiên nhiên, tạo ra không gian sống chan hòa năng lượng và ánh sáng tự nhiên.
Mỗi khoảng trống, mỗi hướng cửa, hướng mái đều được tính toán kỹ theo phong thủy Bát trạch, đảm bảo ngôi nhà luôn đón được luồng sinh khí tốt, mang lại may mắn và vượng tài cho gia chủ.
Ngôi nhà vì thế không chỉ đẹp về kiến trúc, mà còn đẹp cả về phong thủy và cảm xúc sống – một không gian đáng mơ ước dành cho những ai yêu sự an nhiên, thanh lịch và bền vững.
>>>>> Xem thêm: Dự Án Nhà 2 Tầng Mái Nhật Hiện Đại – Anh Chị Oanh Hoàng, P. Thành Sen, Hà Tĩnh
Tổ ấm chuẩn mực – Nơi hội tụ bình yên và giá trị sống tinh tế
Từ góc nhìn cận cảnh, từng chi tiết nhỏ của công trình đều toát lên sự chỉn chu và tinh thần tận tâm trong thiết kế của QA HOME. Hệ cửa kính rộng mở giúp ánh sáng tự nhiên tràn ngập khắp không gian, mang lại cảm giác tươi mới và thoáng đãng. Ban công tầng hai là điểm nhấn đặc biệt – nơi gia chủ có thể thưởng trà, ngắm bình minh hay lắng nghe thanh âm của cuộc sống mỗi buổi chiều muộn.
Bên dưới là khoảng sân lát đá granite sạch sẽ, vững chắc, hai bên được trồng thêm cây xanh tạo mảng màu mềm mại, dung hòa khối kiến trúc khỏe khoắn của ngôi nhà.
Đường nét hiện đại kết hợp tinh thần tân cổ điển được thể hiện tinh tế qua phào chỉ viền mái, cột trụ và các mảng tường âm dương, tạo cảm giác vừa sang trọng vừa gần gũi, như một sự giao hòa giữa quá khứ và hiện tại.
Tất cả các yếu tố – từ màu sắc, vật liệu đến bố cục ánh sáng – đều được tính toán theo nguyên tắc thẩm mỹ và công năng, nhằm mang lại trải nghiệm sống trọn vẹn cho gia chủ.
Ngôi nhà của bác Nguyễn Đình Lê không chỉ là nơi để ở, mà còn là biểu tượng của sự viên mãn, bình yên và đẳng cấp – một tổ ấm chuẩn mực, nơi mọi giá trị sống được nâng niu và tỏa sáng.
QA Home – Kiến tạo tổ ấm từ trái tim, đồng hành bằng trách nhiệm
QA Home không chỉ là đơn vị thiết kế và thi công nội thất chuyên nghiệp, mà còn là người bạn đồng hành đáng tin cậy trong hành trình xây dựng tổ ấm mơ ước cho mỗi gia đình Việt. Với triết lý “Kiến tạo tổ ấm từ trái tim”, chúng tôi đặt cảm xúc và sự thấu hiểu khách hàng làm trung tâm trong mọi thiết kế. Mỗi công trình do QA Home thực hiện đều mang dấu ấn riêng, phản ánh phong cách sống, giá trị cá nhân và không gian sống lý tưởng của gia chủ.
Bên cạnh yếu tố thẩm mỹ, QA Home cam kết trách nhiệm từ khâu tư vấn đến thi công hoàn thiện, đảm bảo tiến độ, chất lượng và sự hài lòng tuyệt đối cho khách hàng. Chính sự tận tâm và trách nhiệm đó đã làm nên thương hiệu QA Home – nơi gửi gắm niềm tin để xây dựng không gian sống hạnh phúc và bền vững.
Nếu bạn cần thêm thông tin hoặc tư vấn chi tiết, hãy liên hệ với chúng tôi để được hỗ trợ tốt nhất! GỌI NGAY CHO CHÚNG TÔI nếu bạn đang tìm kiếm một giải pháp thiết kế nội thất hoàn hảo, hãy liên hệ với chúng tôi ngay hôm nay để được tư vấn và hỗ trợ tốt nhất!
Công ty TNHH Tư Vấn Thiết Kế & Xây Dựng QA Home
Địa chỉ trụ sở chính: Số 10A, Ngõ 2, Đ. Trần Phú, Phường. Thành Sen, Tỉnh. Hà Tĩnh
CN TP. HCM: 25/22 Tôn Thất Tùng, phường Bến Thành, TP. Hồ Chí Minh
CN Cẩm Xuyên: Số 240 Hà Huy Tập, Cẩm Xuyên, Hà Tĩnh
Đường dây nóng: 0877021996


