Ngôi nhà cấp 4 mái Nhật tân cổ điển của bác Nguyễn Đình Hòa tại xã Thiên Cầm, tỉnh Hà Tĩnh là một trong những công trình nổi bật được đội ngũ QA HOME thiết kế và triển khai trong năm 2025. Với diện tích 10.47×16.08m, công trình mang vẻ đẹp bề thế, tinh tế, kết hợp hài hòa giữa nét sang trọng cổ điển và sự tiện nghi của kiến trúc hiện đại. LIÊN HỆ NGAY ĐỂ ĐƯỢC ƯU ĐÃI
Chi Tiết Dự Án Nhà Cấp 4 Mái Nhật Tân Cổ Điển I Bác Nguyễn Đình Hòa
| Hạng mục | Thông tin chi tiết |
|---|---|
| Chủ đầu tư | Bác Nguyễn Đình Hòa |
| Địa điểm | Tây Long – Thị trấn Thiên Cầm – Hà Tĩnh |
| Diện tích thiết kế | 10.47 x 16.08m |
| Diện tích sử dụng | 137m² |
| Công năng sử dụng | Phòng khách, phòng thờ, bếp + ăn, 3 phòng ngủ, WC |
| Phong cách thiết kế | Cấp 4 mái Nhật tân cổ điển |
| Tổng mức đầu tư | Khoảng 1.5 tỷ đồng |
| Gói thiết kế | Gói 01 – 150.000đ/m² |
| Thời gian khởi công | 02/2025 |
| Thời gian hoàn thành | 10/2025 |
| Đơn vị thiết kế | Công ty TNHH Tư vấn Thiết kế & Xây dựng QA HOME |
Phong cách thiết kế tân cổ điển kết hợp mái Nhật sang trọng
Mẫu nhà được thiết kế theo phong cách tân cổ điển nhẹ nhàng, điểm xuyết những đường phào chỉ tinh tế trên nền tường trắng trang nhã. Hệ mái Nhật màu ghi xanh nổi bật giúp tổng thể công trình trở nên cân đối, thanh thoát mà vẫn toát lên vẻ vững chãi, sang trọng. Phần hiên nhà rộng, kết hợp cột vuông ốp đá granite tạo điểm nhấn kiên cố, bề thế cho mặt tiền.
Không chỉ mang giá trị thẩm mỹ cao, kiểu mái Nhật còn có khả năng chống nóng – thoát nước tốt, phù hợp với điều kiện khí hậu miền Trung nắng gió, giúp công trình luôn bền đẹp theo thời gian.
>>>>> Xem thêm: Dự Án Nhà 2 Tầng Mái Nhật Hiện Đại Lai Tân Cổ Điển I Bác Nguyễn Đình Lê
Giới thiệu về hồ sơ thiết kế kiến trúc
Một công trình kiến trúc được đánh giá là hoàn thiện không chỉ nhờ ý tưởng sáng tạo hay vẻ đẹp thẩm mỹ bên ngoài, mà còn bởi bộ hồ sơ thiết kế chi tiết, khoa học và chính xác. Đây là nền tảng quan trọng giúp quá trình thi công diễn ra suôn sẻ, đồng thời đảm bảo công trình đạt được độ bền, tính an toàn và giá trị sử dụng lâu dài.
Hồ sơ thiết kế kiến trúc là tập hợp các bản vẽ kỹ thuật thể hiện đầy đủ hình khối, kích thước, vật liệu, kết cấu và cách bố trí công năng của công trình. Mỗi bản vẽ trong hồ sơ đều có vai trò riêng, phản ánh từng giai đoạn của quá trình sáng tạo kiến trúc – từ quy hoạch tổng thể, mặt bằng công năng, mặt đứng, mặt cắt, cho đến chi tiết vật liệu hoàn thiện và phối cảnh 3D.
Tại QA HOME, hồ sơ thiết kế không đơn thuần là tập hợp bản vẽ kỹ thuật, mà là một sản phẩm trí tuệ được tạo ra từ quá trình nghiên cứu kỹ lưỡng, sáng tạo có cơ sở và tính toán chính xác đến từng chi tiết. Mỗi công trình trước khi ra đời đều trải qua các bước làm việc nghiêm ngặt: khảo sát thực tế, phân tích phong thủy, tối ưu hướng nắng gió, chọn vật liệu phù hợp khí hậu địa phương và đảm bảo tính thẩm mỹ tổng thể.
Bộ hồ sơ hoàn chỉnh thường bao gồm:
-
Phần kiến trúc: Mặt bằng, mặt đứng, mặt cắt, chi tiết mái, cửa, trần, cầu thang, vệ sinh, và các bản vẽ vật liệu hoàn thiện.
-
Phần kết cấu: Thể hiện khung chịu lực, dầm, sàn, móng, cột… đảm bảo an toàn và ổn định cho toàn bộ công trình.
-
Phần điện – nước: Bố trí hệ thống cấp thoát nước, chiếu sáng, ổ cắm, thiết bị điện, đảm bảo tiện nghi trong sinh hoạt.
-
Phần phối cảnh 3D: Giúp chủ đầu tư hình dung trực quan hình khối, vật liệu và màu sắc công trình trước khi thi công thực tế.
Mỗi chi tiết trong hồ sơ đều được QA HOME thực hiện tỉ mỉ, đúng quy chuẩn kỹ thuật và mang đậm dấu ấn sáng tạo riêng. Đội ngũ kiến trúc sư của công ty không chỉ am hiểu kỹ thuật mà còn có tư duy thẩm mỹ sâu sắc, giúp kết nối giữa công năng và nghệ thuật trong từng đường nét thiết kế.

Mặt bằng tổng thể sân vườn Nhà Cấp 4 Mái Nhật Tân Cổ Điển
Phần mặt bằng tổng thể của công trình được quy hoạch trên nền diện tích rộng rãi, đảm bảo sự cân đối và liên kết chặt chẽ giữa khối nhà chính và các không gian phụ trợ xung quanh. Từ ý tưởng ban đầu, đội ngũ kiến trúc sư QA HOME đã lựa chọn hướng quy hoạch đối xứng, tổ chức không gian theo trục trung tâm, kết hợp hài hòa giữa yếu tố công năng và cảnh quan thiên nhiên. Các tuyến giao thông nội bộ được bố trí mạch lạc, giúp việc di chuyển giữa các khu vực trở nên thuận tiện, đồng thời tạo cảm giác rộng thoáng cho toàn bộ khu đất.
>>>>> Xem thêm: Dự án thiết kế nhà phố khác do QA HOME thiết kế
Không gian sân vườn được thiết kế mở, tận dụng tối đa gió và ánh sáng tự nhiên, đồng thời tạo nên những “khoảng thở” giúp công trình luôn chan hòa với thiên nhiên. Phía trước nhà là khoảng sân lát gạch granite chống trơn, xen kẽ mảng xanh của bồn cây và thảm cỏ. Cách sắp đặt này không chỉ mang lại vẻ mát mẻ, tinh khiết mà còn nâng cao giá trị thẩm mỹ tổng thể của công trình.

Khu sân sau được thiết kế kín đáo, thích hợp cho các hoạt động sinh hoạt ngoài trời, nơi gia đình có thể thư giãn, tổ chức tiệc nhỏ hoặc thưởng trà trong không gian riêng tư. Đường dạo sân vườn lát đá tự nhiên xen cỏ, vừa mang lại cảm giác mềm mại, vừa gợi lên nét giản dị và thanh tao của phong cách sân vườn Nhật Bản.
Ngoại thất sang trọng – điểm nhấn ấn tượng của công trình
Tổng thể ngôi nhà toát lên vẻ đẹp tân cổ điển nhẹ nhàng pha nét hiện đại, được các kiến trúc sư QA HOME xử lý tinh tế trong từng chi tiết phào chỉ, gờ tường và hệ trụ cột. Các mảng khối vuông vức, cân đối tạo nên cảm giác vững chãi và bề thế cho ngôi nhà. Trụ cột được ốp đá granite sáng bóng không chỉ tăng tính thẩm mỹ mà còn giúp bảo vệ bề mặt công trình khỏi tác động thời tiết.
Phần mái Nhật dốc nhẹ màu ghi xanh là điểm nhấn nổi bật, vừa giúp thoát nước nhanh, vừa mang lại vẻ thanh thoát, hiện đại cho tổng thể kiến trúc. Mái được thiết kế đua rộng, kết hợp cùng hệ viền mái sắc nét, làm nổi bật hình khối sang trọng của công trình.
>>>>>> Xem thêm: Các dự án thiết kế của QA Home
Gam màu trắng – ghi xám được phối hợp hài hòa, giúp tôn lên vẻ đẹp tinh tế và trang nhã. Trên nền tường sáng, hệ cửa gỗ tự nhiên kết hợp kính cường lực trở thành điểm nhấn vừa truyền thống vừa hiện đại, giúp ánh sáng tự nhiên tràn ngập không gian sống, tạo cảm giác ấm áp và gần gũi.

Phía trước nhà, khu sân rộng lát đá chống trơn mang lại cảm giác sạch sẽ, sang trọng và an toàn khi di chuyển. Khu vực này có thể bố trí chỗ đậu xe, khu vui chơi hoặc tiểu cảnh nhỏ – nơi các thành viên có thể thư giãn, trò chuyện sau một ngày dài làm việc. Xung quanh, khuôn viên cây xanh được bố trí hợp lý, tạo nên không gian “sống xanh” đúng với tinh thần thiết kế bền vững mà QA HOME luôn hướng đến. Từng góc nhỏ đều thể hiện sự chỉn chu, tinh tế và gu thẩm mỹ cao của chủ đầu tư.
Nội thất tiện nghi Nhà Cấp 4 Mái Nhật Tân Cổ Điển
Bước vào bên trong, ngôi nhà mang đến cảm giác ấm cúng và sang trọng nhờ cách bố trí không gian mở, liên thông giữa phòng khách và khu bếp – ăn. Thiết kế này giúp tối ưu diện tích sử dụng, đồng thời tăng sự kết nối giữa các thành viên trong gia đình.
Phòng khách rộng 25m² được trang trí với tông màu sáng chủ đạo, kết hợp ánh sáng tự nhiên qua hệ cửa lớn và đèn trần thạch cao giật cấp, tạo cảm giác cao ráo, thoáng đãng. Bộ sofa màu trung tính, điểm xuyết bằng những món décor tinh tế, thể hiện rõ phong cách hiện đại mà vẫn giữ nét truyền thống ấm cúng của người Việt.
Phối cảnh phòng ngủ
Không gian phòng ngủ được thiết kế theo phong cách hiện đại tối giản, tinh tế và đề cao sự thư giãn – đúng tinh thần “nghỉ ngơi giữa thiên nhiên” mà QA HOME luôn hướng đến trong các công trình nhà mái Nhật. Tông màu chủ đạo là trắng kem kết hợp ghi sáng và gỗ nâu trầm, mang đến cảm giác ấm cúng, thanh lịch và cân bằng thị giác.
Trung tâm không gian là chiếc giường bọc nệm cao cấp, thiết kế thấp, đầu giường ốp vải nỉ sang trọng, tạo điểm nhấn mềm mại cho căn phòng. Hai bên giường được bố trí bàn đầu nhỏ gọn, kết hợp đèn đọc sách kiểu dáng hiện đại – vừa đủ công năng, vừa tạo hiệu ứng ánh sáng dịu nhẹ khi về đêm.

Bức tường phía sau giường được ốp panel gỗ và phào nan trang trí chạy dọc kết hợp gương bo cong mềm mại, tạo chiều sâu và cảm giác cao rộng cho căn phòng. Hệ thống đèn hắt trần âm tường và đèn rọi điểm được tính toán kỹ lưỡng để ánh sáng phân bố đồng đều, làm nổi bật vật liệu và tạo bầu không khí thư giãn, dễ chịu.
Cửa sổ lớn đón sáng tự nhiên, kết hợp rèm hai lớp (voan mỏng và vải dày) giúp điều chỉnh ánh sáng linh hoạt, vừa đảm bảo sự riêng tư, vừa mang đến tầm nhìn hướng ra sân vườn xanh mát. Khu vực bàn trang điểm được thiết kế gọn gàng, liên kết liền mạch với hệ tường ốp sau giường, vừa đảm bảo công năng sử dụng, vừa là điểm nhấn thẩm mỹ thanh lịch.

Hệ tủ quần áo cao kịch trần phủ sơn trắng ánh ngọc trai với tay nắm kim loại màu đồng ánh vàng là chi tiết tạo nên vẻ sang trọng, tinh tế. Bên cạnh đó, chất liệu gỗ ấm kết hợp ánh sáng vàng nhạt từ đèn âm trần giúp tổng thể không gian trở nên hài hòa và ấm áp hơn, mang lại cảm giác nghỉ ngơi trọn vẹn sau một ngày làm việc.

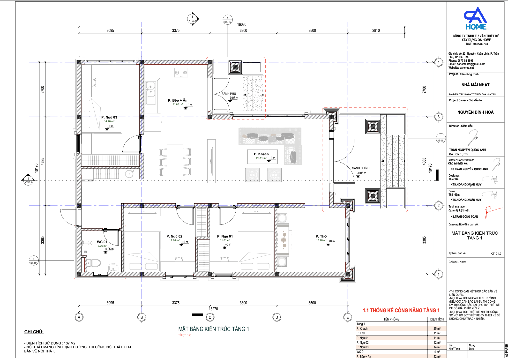
Công năng sử dụng
Công năng của công trình được đội ngũ kiến trúc sư QA HOME nghiên cứu kỹ lưỡng dựa trên thói quen sinh hoạt và nhu cầu sử dụng thực tế của gia đình ba thế hệ. Mặt bằng tầng 1 được tổ chức theo nguyên tắc rõ ràng, hợp lý, tách biệt giữa khu sinh hoạt chung và khu nghỉ ngơi riêng tư, đồng thời tối ưu khả năng thông gió và chiếu sáng tự nhiên cho toàn bộ không gian.


Phòng khách nằm ở vị trí trung tâm, là nơi giao thoa giữa các không gian khác trong ngôi nhà. Với diện tích 25m², phòng khách được thiết kế mở, liên thông trực tiếp với khu bếp – ăn và kết nối ra sân vườn qua hệ cửa kính lớn. Nhờ cách bố trí này, ánh sáng và gió trời dễ dàng lan tỏa, tạo nên cảm giác thoáng đạt và gần gũi thiên nhiên. Không gian được trang trí theo phong cách hiện đại, nhẹ nhàng nhưng vẫn toát lên vẻ sang trọng, lịch lãm.
Kế cận là phòng thờ diện tích 11m², được đặt ở vị trí trang trọng, quay đúng hướng hợp mệnh gia chủ. KTS QA HOME đặc biệt chú trọng đến yếu tố phong thủy, nhằm mang lại sự bình an, may mắn và cân bằng năng lượng tâm linh trong không gian sống.
Khu bếp và phòng ăn chiếm diện tích 22m², là nơi gắn kết các thành viên trong gia đình. Thiết kế mở, thông thoáng giúp mùi thức ăn dễ dàng thoát ra ngoài, đồng thời cửa sổ kính lớn mang đến ánh sáng tự nhiên, tạo cảm giác ấm cúng và sạch sẽ.
Ba phòng ngủ được bố trí dọc theo trục ngang của ngôi nhà, diện tích từ 11m² đến 14m², mỗi phòng đều có cửa sổ mở ra vườn, đón nắng và gió tự nhiên. Cách bố trí này không chỉ giúp tiết kiệm năng lượng mà còn mang lại chất lượng giấc ngủ tốt, góp phần nâng cao sức khỏe cho các thành viên. Phòng vệ sinh 4m² được thiết kế hiện đại, tách khô – ướt rõ ràng, trang bị thiết bị vệ sinh cao cấp và dễ dàng bảo trì.
Phối cảnh 3D kiến trúc Nhà Cấp 4 Mái Nhật Tân Cổ Điển
Phối cảnh 3D là bước thể hiện rõ nhất ý tưởng thiết kế của QA HOME – nơi từng chi tiết được tính toán chính xác, mang lại hình ảnh sống động trước khi bước vào thi công thực tế. Tổng thể công trình gây ấn tượng bởi hình khối gọn gàng, đường nét tinh tế và tông màu chủ đạo trắng – ghi – nâu gỗ, biểu trưng cho sự thanh lịch và bền vững.
Phần tường ngoại thất sử dụng sơn trắng nhã nhặn kết hợp các mảng ốp đá granite giả đá màu xám, tạo chiều sâu thị giác và điểm nhấn cho mặt tiền. Hệ cửa kính khung nhôm xám tro mở rộng tầm nhìn, đón ánh sáng tự nhiên, mang lại cảm giác không gian được nới rộng, hài hòa với sân vườn xung quanh.
Điểm nhấn nổi bật là hiên nhà và mái đua dài, tạo bóng đổ đẹp mắt, đồng thời giúp công trình toát lên vẻ thanh thoát đặc trưng của kiến trúc Nhật. Những đường phào chỉ nhẹ ở diềm mái, những bồn cây nhỏ trước hiên và hàng cây xanh bao quanh góp phần tạo nên không khí bình yên, an hòa – tinh thần “Zen” mà QA HOME luôn hướng đến trong mỗi thiết kế.
QA Home – Kiến tạo tổ ấm từ trái tim, đồng hành bằng trách nhiệm
QA Home không chỉ là đơn vị thiết kế và thi công nội thất chuyên nghiệp, mà còn là người bạn đồng hành đáng tin cậy trong hành trình xây dựng tổ ấm mơ ước cho mỗi gia đình Việt. Với triết lý “Kiến tạo tổ ấm từ trái tim”, chúng tôi đặt cảm xúc và sự thấu hiểu khách hàng làm trung tâm trong mọi thiết kế. Mỗi công trình do QA Home thực hiện đều mang dấu ấn riêng, phản ánh phong cách sống, giá trị cá nhân và không gian sống lý tưởng của gia chủ.
Bên cạnh yếu tố thẩm mỹ, QA Home cam kết trách nhiệm từ khâu tư vấn đến thi công hoàn thiện, đảm bảo tiến độ, chất lượng và sự hài lòng tuyệt đối cho khách hàng. Chính sự tận tâm và trách nhiệm đó đã làm nên thương hiệu QA Home – nơi gửi gắm niềm tin để xây dựng không gian sống hạnh phúc và bền vững.
Nếu bạn cần thêm thông tin hoặc tư vấn chi tiết, hãy liên hệ với chúng tôi để được hỗ trợ tốt nhất! GỌI NGAY CHO CHÚNG TÔI nếu bạn đang tìm kiếm một giải pháp thiết kế nội thất hoàn hảo, hãy liên hệ với chúng tôi ngay hôm nay để được tư vấn và hỗ trợ tốt nhất!
Công ty TNHH Tư Vấn Thiết Kế & Xây Dựng QA Home
Địa chỉ trụ sở chính: Số 10A, Ngõ 2, Đ. Trần Phú, Phường. Thành Sen, Tỉnh. Hà Tĩnh
CN TP. HCM: 25/22 Tôn Thất Tùng, phường Bến Thành, TP. Hồ Chí Minh
CN Cẩm Xuyên: Số 240 Hà Huy Tập, Cẩm Xuyên, Hà Tĩnh
Đường dây nóng: 0877021996


