Dự án nhà mái nhật nhà anh Chu Trọng An là minh chứng rõ ràng cho triết lý thiết kế của QA HOME – hướng đến kiến trúc bền vững, thẩm mỹ tinh tế và công năng hoàn hảo. Ngôi nhà không chỉ là nơi ở, mà còn là tổ ấm thể hiện phong cách sống, gu thẩm mỹ và cá tính riêng của gia chủ. LIÊN HỆ NGAY ĐỂ ĐƯỢC ƯU ĐÃI
Chi Tiết Dự Án Nhà Mái Nhật Anh Chu Trọng An I Xã Thiên Cầm, Hà Tĩnh
| Hạng mục | Nội dung chi tiết |
|---|---|
| Chủ đầu tư | Anh Chu Trọng An |
| Địa điểm xây dựng | Xã Thiên Cầm, Tỉnh Hà Tĩnh |
| Diện tích thiết kế | 6m x 25m |
| Tổng mức đầu tư dự kiến | 1,5 tỷ đồng |
| Số tầng | 2 tầng |
| Phong cách thiết kế | Nhà phố mái Nhật hiện đại |
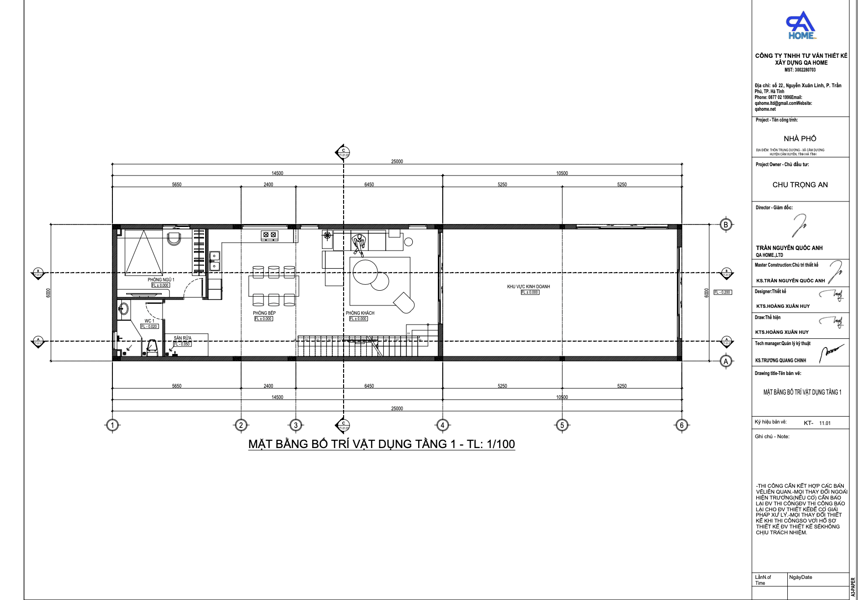
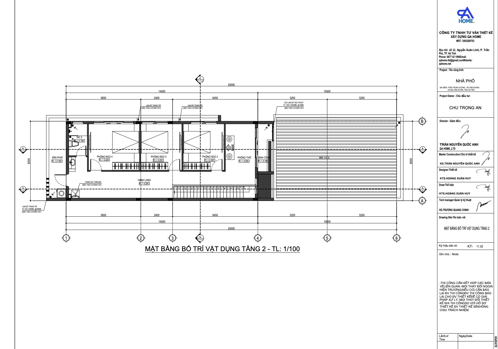
| Công năng sử dụng | Tầng 1: Shop kinh doanh, Phòng khách, Bếp – Ăn, Phòng ngủ, WC, Sân rửa, Sân trước. Tầng 2: Phòng thờ, 3 Phòng ngủ, WC, Sân phơi, Ban công. |
| Gói thiết kế | Gói 01 (150.000đ/m²) & Gói nội thất khách – bếp |
| Thời gian khởi công | Tháng 03/2025 |
| Thời gian hoàn thành | Tháng 12/2025 |
Tổng quan thiết kế
Công trình nhà phố 2 tầng mái Nhật hiện đại của anh Chu Trọng An được đội ngũ QA HOME nghiên cứu và thiết kế kỹ lưỡng với định hướng đơn giản – tinh tế – hiệu quả công năng.
Trên khu đất có mặt tiền 6m, chiều sâu 25m, KTS đã tận dụng tối đa diện tích, tạo nên bố cục hợp lý giữa khối kiến trúc chính – không gian phụ trợ – khoảng xanh thiên nhiên.
Điểm đặc biệt của công trình là sự kết hợp hài hòa giữa nhu cầu ở và nhu cầu kinh doanh. Tầng 1 được bố trí thêm khu shop kinh doanh phía trước, tạo điều kiện thuận lợi cho gia chủ vừa buôn bán, vừa sinh hoạt trong cùng một không gian mà vẫn giữ được sự riêng tư, thoáng đãng và tiện nghi.
Với định hướng thiết kế này, ngôi nhà không chỉ đáp ứng tiêu chí đẹp về hình khối – chuẩn về công năng – hợp phong thủy, mà còn phản ánh đúng tinh thần mà QA HOME luôn theo đuổi: kiến trúc hướng đến con người và giá trị sống bền vững.
>>>>> Xem thêm: Dự án thiết kế nhà phố khác do QA HOME thiết kế
Phong cách kiến trúc hiện đại kết hợp mái Nhật
Ngôi nhà được định hình theo phong cách kiến trúc hiện đại, kết hợp tinh tế với mái Nhật truyền thống – kiểu mái nổi bật với dáng dốc nhẹ, cân đối và mềm mại.
Tổng thể công trình mang lại cảm giác thanh thoát, bền vững và sang trọng, phù hợp khí hậu miền Trung, nơi mưa nắng thất thường.
Các chi tiết kiến trúc được xử lý tỉ mỉ, đảm bảo tính thẩm mỹ cao mà không phô trương. Hệ mái Nhật hai lớp tạo cảm giác uyển chuyển, giúp thoát nước nhanh và giảm nhiệt tốt vào mùa hè. Lam sắt trang trí được bố trí ở mặt tiền, vừa tạo nhịp điệu kiến trúc, vừa giúp giảm nắng chiếu trực tiếp vào không gian bên trong.
Bên cạnh đó, mảng tường ốp gỗ và các chi tiết phào chỉ phẳng được sử dụng tiết chế nhưng tinh tế, giúp mặt tiền có chiều sâu và nhấn mạnh vẻ sang trọng của công trình.
Sự phối hợp giữa các vật liệu hiện đại như kính, đá granite, gỗ nhựa ngoài trời mang đến vẻ đẹp hiện đại, nhẹ nhàng nhưng vẫn giữ được sự ấm áp đặc trưng của kiến trúc nhà ở Việt Nam.
Nhờ cách xử lý hình khối rõ ràng, tỷ lệ hợp lý và vật liệu chọn lọc, ngôi nhà toát lên vẻ hiện đại nhưng bền dáng theo thời gian, đúng như tinh thần của kiến trúc Nhật: giản dị – cân bằng – tinh tế.
>>>>> Xem thêm: Dự Án Nhà 2 Tầng Mái Nhật Hiện Đại Lai Tân Cổ Điển I Bác Nguyễn Đình Lê

Ngoại thất & không gian mở
Không gian ngoại thất của công trình được thiết kế hướng đến sự nhẹ nhàng, tinh tế và chan hòa với thiên nhiên. QA HOME định hướng toàn bộ ngôi nhà theo triết lý “kiến trúc mở”, tức là mỗi không gian đều có sự giao tiếp trực tiếp với ánh sáng, gió và cây xanh xung quanh.
KTS đã khéo léo tận dụng hai hướng sáng chính của khu đất để bố trí hệ thống cửa kính lớn, giúp đón ánh sáng tự nhiên suốt cả ngày, đồng thời tạo cảm giác thông thoáng và tiết kiệm năng lượng. Cửa và lan can sử dụng kính cường lực khung nhôm xám tro, mang đến vẻ hiện đại, thanh mảnh và mở rộng tầm nhìn.
Phần ban công rộng phía trước được thiết kế kết hợp bồn hoa xanh và lam che nắng, không chỉ tăng tính thẩm mỹ mà còn tạo cảm giác mát mẻ, gần gũi thiên nhiên.
Màu sơn trắng sáng kết hợp cùng mảng ốp giả gỗ tự nhiên giúp mặt tiền trở nên sinh động, nổi bật nhưng không mất đi sự tinh giản vốn có.
>>>>> Xem thêm : Dự Án Nhà Cấp 4 Mái Nhật Tân Cổ Điển I Bác Nguyễn Đình Hòa
Nhờ cách tổ chức không gian hợp lý, công trình vừa đảm bảo tính riêng tư, vừa mang lại trải nghiệm sống thoáng đãng, an lành và bền vững theo thời gian.

AN SHOP – Mặt tiền kinh doanh hiện đại và thu hút
Kiến trúc mặt tiền
Phần mặt tiền AN SHOP được thiết kế với hình khối vuông vức, đường nét dứt khoát, tạo cảm giác mạnh mẽ và vững chãi. Toàn bộ khu vực tầng 1 được ốp đá granite màu xám khói vân mây, kết hợp cùng kính cường lực khung nhôm đen – một lựa chọn hoàn hảo để thể hiện tính hiện đại, đồng thời phản chiếu ánh sáng tự nhiên, giúp không gian bên trong luôn sáng và thông thoáng.
Biển hiệu “AN SHOP” nổi bật với chữ nổi kim loại mạ vàng đồng, tạo điểm nhấn sang trọng và dễ nhận diện từ xa. Phía trên là mảng mái đua phẳng kết hợp hệ đèn LED rọi sáng ban đêm, giúp cửa hàng luôn bắt mắt và thu hút dù ở bất kỳ thời điểm nào trong ngày.
Bố cục đối xứng cùng các mảng vật liệu lớn tạo cảm giác cân bằng, chắc chắn, đồng thời thể hiện sự chuyên nghiệp – yếu tố quan trọng trong thiết kế không gian thương mại.

Giải pháp chiếu sáng & nhận diện thương hiệu
QA HOME chú trọng khai thác ánh sáng như một yếu tố thiết kế chủ đạo. Hệ đèn tường ngoài trời ánh sáng vàng ấm được bố trí hai bên cửa chính, vừa giúp làm nổi bật chất liệu đá, vừa tạo chiều sâu thị giác cho mặt tiền. Khi đêm xuống, ánh sáng nhẹ phản chiếu trên bề mặt granite và chữ nổi, khiến AN SHOP trở nên cuốn hút và dễ dàng thu hút khách hàng.
Giải pháp này không chỉ tăng hiệu quả thẩm mỹ mà còn góp phần nâng cao giá trị nhận diện thương hiệu, tạo ấn tượng về một cửa hàng cao cấp, tinh tế và đáng tin cậy.

Sự hài hòa giữa không gian kinh doanh và kiến trúc nhà ở
Một trong những điểm đáng chú ý nhất là sự liên kết mạch lạc giữa tầng shop và khối nhà ở phía trên. Kiến trúc sư đã tinh tế xử lý hình khối để phần shop trở thành một “nền kiến trúc” hiện đại nâng đỡ cho khối mái Nhật phía trên, tạo nên tổng thể vừa mạnh mẽ, vừa cân đối.
Gam màu trung tính của đá ốp, kính và sơn tường giúp phần nhà trên nổi bật hơn, đồng thời giữ được sự thống nhất trong ngôn ngữ thiết kế – một dấu ấn quen thuộc trong các công trình của QA HOME.
Không gian xanh được lồng ghép khéo léo với bồn cây nhỏ phía hông và mảng cây xanh tầng 2, mang đến hơi thở tự nhiên, làm mềm kiến trúc và giúp công trình thân thiện hơn với môi trường đô thị.

Công năng sử dụng chi tiết
Tầng 1 – Không gian sinh hoạt & kinh doanh linh hoạt
Tầng 1 được bố trí khoa học để đáp ứng hai chức năng chính: kinh doanh và sinh hoạt gia đình.
Phía trước là khu shop kinh doanh rộng rãi, có thể tận dụng cho cửa hàng tạp hóa, thời trang, hoặc salon nhỏ – mang lại hiệu quả kinh tế cho gia chủ. Bên trong là phòng khách thiết kế mở, kết nối liền mạch với phòng bếp và phòng ăn, tạo nên sự thông thoáng, thuận tiện cho sinh hoạt chung.
Khu vực phòng ngủ nhỏ được bố trí cuối nhà, phù hợp cho người lớn tuổi hoặc khách ở lại. Ngoài ra, WC tầng 1, sân rửa và sân sau được quy hoạch riêng biệt, đảm bảo công năng sử dụng hợp lý, thuận tiện cho vệ sinh và giặt giũ hằng ngày.
Không gian sân trước vừa là khu vực để xe, vừa đóng vai trò như lớp đệm giúp ngôi nhà thoáng khí và an toàn hơn so với đường giao thông chính.

Tầng 2 – Không gian riêng tư & nghỉ ngơi yên tĩnh
Lên tầng 2 là không gian sinh hoạt riêng của các thành viên trong gia đình. Bố cục gồm 03 phòng ngủ, 01 WC chung, phòng thờ, sân phơi và ban công lớn.
Phòng thờ được đặt ở vị trí cao nhất, hướng hợp mệnh gia chủ, thể hiện sự tôn nghiêm và truyền thống gia đình Việt. Các phòng ngủ đều có cửa sổ mở ra ban công hoặc khoảng giếng trời, tận dụng tối đa ánh sáng tự nhiên.
Sân phơi bố trí kín đáo phía sau nhà, tách biệt với không gian sinh hoạt để đảm bảo tính thẩm mỹ. Phía trước là ban công lớn – nơi thư giãn, ngắm cảnh, đồng thời tạo điểm nhấn cho mặt tiền kiến trúc.

Phòng khách – Không gian tiếp đón sang trọng và tinh tế
Phòng khách của ngôi nhà được thiết kế theo phong cách hiện đại tối giản, thể hiện rõ tư duy thiết kế “ít mà tinh – đơn giản nhưng đẳng cấp” của QA HOME.
Ngay khi bước vào, cảm nhận đầu tiên là không gian mở thoáng đãng, nơi ánh sáng tự nhiên len qua các ô cửa kính lớn, hòa cùng sắc trung tính chủ đạo, tạo nên một tổng thể nhẹ nhàng nhưng đầy ấn tượng.

Tông màu xám – nâu – kem được phối hợp hài hòa, làm nổi bật bộ sofa da cao cấp kiểu dáng chữ L, vừa mềm mại vừa mang lại cảm giác sang trọng, ấm cúng. Bàn trà thiết kế dạng khối tròn bất đối xứng, sử dụng vật liệu kính phối gỗ, giúp không gian thêm sinh động và hiện đại.
Tường ốp giả bê tông kết hợp lam sắt đen tạo chiều sâu cho không gian, đồng thời mang lại hiệu ứng thị giác mạnh mẽ – một điểm nhấn đặc trưng trong phong cách nội thất đương đại.

KTS QA HOME khéo léo xử lý không gian gầm cầu thang bằng hệ tủ âm tường ốp đá đen vân trắng, vừa tối ưu công năng chứa đồ, vừa tạo nên mảng nhấn sang trọng cho khu vực tivi. Tay vịn cầu thang kính cường lực giúp không gian trở nên liền mạch và mở rộng hơn về mặt thị giác.
Tất cả chi tiết đều hướng đến một mục tiêu duy nhất: tạo nên phòng khách hiện đại, tinh tế, thể hiện cá tính của gia chủ nhưng vẫn ấm cúng – thân thiện để gắn kết các thành viên trong gia đình.
Phòng bếp – ăn: Tối giản, tiện nghi và ấm cúng
Liền kề không gian phòng khách là khu vực phòng bếp và bàn ăn, được QA HOME bố trí theo nguyên tắc “liên thông – thông thoáng – tiện dụng”. Đây không chỉ là nơi nấu nướng mà còn là trái tim của ngôi nhà, nơi gắn kết tình cảm gia đình mỗi ngày.
Khu bếp được thiết kế theo dạng chữ L, tối ưu hóa diện tích và công năng. Hệ tủ bếp màu đen nhám kết hợp đá xám ánh bạc tạo cảm giác hiện đại, mạnh mẽ nhưng không lạnh lẽo. Toàn bộ bề mặt tủ được xử lý phẳng, không tay nắm, giúp tổng thể trở nên tinh gọn và sang trọng hơn.
KTS bố trí ô cửa ngang lớn sau bếp, vừa đảm bảo thông gió – chiếu sáng tự nhiên, vừa giúp không gian luôn khô thoáng, sạch sẽ.
Bàn ăn 6 ghế được đặt tại trung tâm, với mặt gỗ phủ sơn bóng mờ và chân kim loại vững chắc, tạo điểm nhấn vừa ấm cúng vừa hiện đại. Hệ đèn thả trần dáng dài được bố trí ngay phía trên, ánh sáng vàng dịu mang lại cảm giác gần gũi, phù hợp với bữa ăn gia đình.
Sự kết hợp giữa vật liệu hiện đại – kính, kim loại, đá, da – và tông màu trung tính giúp khu vực bếp – ăn trở thành không gian vừa tiện nghi, vừa sang trọng, đúng tinh thần “Functional Luxury” mà QA HOME luôn hướng đến.
Phòng bếp – ăn không chỉ là nơi sinh hoạt, mà còn là không gian thể hiện gu thẩm mỹ tinh tế của gia chủ: gọn gàng, ấm áp và tràn đầy năng lượng sống.

QA Home – Kiến tạo tổ ấm từ trái tim, đồng hành bằng trách nhiệm
QA Home không chỉ là đơn vị thiết kế và thi công nội thất chuyên nghiệp, mà còn là người bạn đồng hành đáng tin cậy trong hành trình xây dựng tổ ấm mơ ước cho mỗi gia đình Việt. Với triết lý “Kiến tạo tổ ấm từ trái tim”, chúng tôi đặt cảm xúc và sự thấu hiểu khách hàng làm trung tâm trong mọi thiết kế. Mỗi công trình do QA Home thực hiện đều mang dấu ấn riêng, phản ánh phong cách sống, giá trị cá nhân và không gian sống lý tưởng của gia chủ.
Bên cạnh yếu tố thẩm mỹ, QA Home cam kết trách nhiệm từ khâu tư vấn đến thi công hoàn thiện, đảm bảo tiến độ, chất lượng và sự hài lòng tuyệt đối cho khách hàng. Chính sự tận tâm và trách nhiệm đó đã làm nên thương hiệu QA Home – nơi gửi gắm niềm tin để xây dựng không gian sống hạnh phúc và bền vững.
Nếu bạn cần thêm thông tin hoặc tư vấn chi tiết, hãy liên hệ với chúng tôi để được hỗ trợ tốt nhất! GỌI NGAY CHO CHÚNG TÔI nếu bạn đang tìm kiếm một giải pháp thiết kế nội thất hoàn hảo, hãy liên hệ với chúng tôi ngay hôm nay để được tư vấn và hỗ trợ tốt nhất!
Công ty TNHH Tư Vấn Thiết Kế & Xây Dựng QA Home
Địa chỉ trụ sở chính: Số 10A, Ngõ 2, Đ. Trần Phú, Phường. Thành Sen, Tỉnh. Hà Tĩnh
CN TP. HCM: 25/22 Tôn Thất Tùng, phường Bến Thành, TP. Hồ Chí Minh
CN Cẩm Xuyên: Số 240 Hà Huy Tập, Cẩm Xuyên, Hà Tĩnh


