Dự án nhà từ đường kết hợp nhà ở của bác Sinh tại xã Thiên Cầm, Hà Tĩnh do QA HOME thiết kế mang đậm dấu ấn truyền thống Bắc Trung Bộ, kết hợp tinh tế giữa không gian thờ tự trang nghiêm và khu sinh hoạt tiện nghi. Với tổng diện tích 24x25m, công trình gồm khu nhà từ đường, nhà gỗ 3 gian, nhà ở và nhà khách, hứa hẹn là điểm nhấn kiến trúc bền vững, chuẩn mực cho dòng họ.
Chi Tiết Dự Án Nhà Từ Đường Kết Hợp Nhà Ở Bác Sinh – Thiên Cầm, Hà Tĩnh
| Hạng mục | Thông tin chi tiết |
|---|---|
| Chủ đầu tư | Bác Sinh |
| Địa điểm xây dựng | Xã Thiên Cầm, Tỉnh Hà Tĩnh |
| Diện tích thiết kế | 24m x 25m |
| Công năng sử dụng | Khu nhà từ đường, khu nhà gỗ 3 gian, khu nhà ở, khu nhà khách |
| Tổng mức đầu tư | 4,2 tỷ đồng |
| Phong cách thiết kế | Nhà từ đường kết hợp nhà ở |
| Gói thiết kế | Gói riêng |
| Thời gian khởi công | Tháng 06/2025 |
| Thời gian hoàn thành | Tháng 02/2026 |
Mô tả dự án
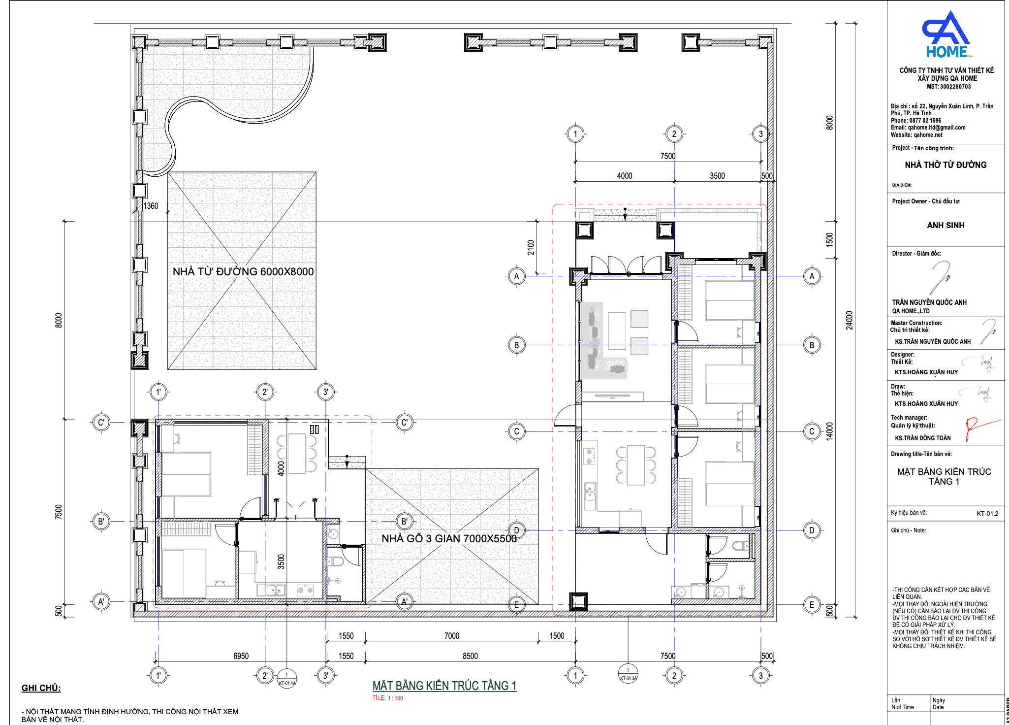
Dự án nhà từ đường kết hợp nhà ở của bác Sinh tại xã Thiên Cầm, Hà Tĩnh là một trong những công trình tiêu biểu do QA HOME thiết kế và triển khai trong năm 2025. Với diện tích khu đất 24x25m, công trình được quy hoạch bài bản, phân chia hài hòa giữa các khu chức năng: khu nhà từ đường, khu nhà gỗ 3 gian, khu nhà ở và khu nhà khách.
Lấy cảm hứng từ kiến trúc nhà thờ họ truyền thống Bắc Trung Bộ, ngôi nhà nổi bật với mái ngói đỏ cổ kính, hàng cột gỗ chắc chắn, sân lát gạch đỏ và tiểu cảnh non bộ trung tâm mang ý nghĩa phong thủy cát tường. Bên cạnh đó, QA HOME khéo léo lồng ghép yếu tố hiện đại trong không gian sinh hoạt: khối nhà ở và nhà khách sử dụng mái ngói đen, cửa kính lớn, hệ thông gió tự nhiên và vật liệu bền vững – mang đến sự tiện nghi, thoáng đãng nhưng vẫn đậm nét truyền thống Việt.

Công trình không chỉ là nơi thờ tự tổ tiên, mà còn là không gian kết nối các thế hệ trong dòng họ, thể hiện đạo lý “uống nước nhớ nguồn” – giá trị cốt lõi mà QA HOME luôn hướng đến trong từng thiết kế.
Công năng sử dụng
Khu nhà từ đường
Đây là trung tâm của toàn bộ công trình, là nơi thờ cúng tổ tiên và lưu giữ các giá trị văn hóa tinh thần của dòng họ. Kiến trúc được thiết kế theo lối truyền thống Bắc Trung Bộ, mái ngói đỏ, khung gỗ vững chắc, họa tiết tinh xảo thể hiện sự trang nghiêm và lòng hiếu kính.
Không gian thờ chính được bố trí cao ráo, thoáng đãng, hướng hợp phong thủy, giúp tăng sinh khí, tụ phúc đức cho con cháu. Phía trước là khoảng sân rộng, thuận tiện cho việc tổ chức lễ giỗ, lễ Tết hay đón tiếp họ hàng phương xa.

Khu nhà gỗ 3 gian
Khu nhà gỗ 3 gian được dựng bằng chất liệu gỗ tự nhiên – mang đến vẻ đẹp mộc mạc, gần gũi nhưng vẫn sang trọng. Ba gian được bố trí hợp lý: gian giữa làm không gian tiếp khách thân mật, hai gian bên là nơi nghỉ ngơi hoặc sinh hoạt phụ.
Với kết cấu vì kèo, cột, xà, kẻ truyền đúng chuẩn truyền thống, khu nhà gỗ không chỉ là nơi sinh hoạt mà còn là biểu tượng lưu giữ nếp sống Việt xưa, khơi gợi cảm giác ấm cúng và sum vầy.

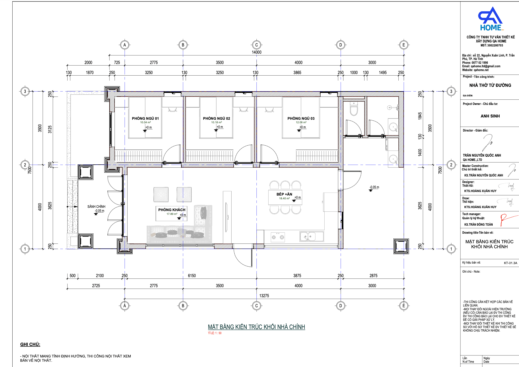
Khu nhà ở
Khu nhà ở được thiết kế hiện đại, tiện nghi và thoáng mát, gồm:
-
Phòng khách rộng rãi (17,89m²) liên thông với khu bếp – ăn (18,4m²) giúp tạo sự gắn kết giữa các thành viên.
-
3 phòng ngủ độc lập (10–12m²/phòng) được bố trí hợp lý để tối ưu ánh sáng và thông gió tự nhiên.
-
Khu vệ sinh và sảnh hiên mở rộng, tạo không gian nghỉ ngơi, thư giãn cho gia đình sau những giờ làm việc.
Toàn bộ không gian được bố trí gọn gàng, hợp lý, thuận tiện trong di chuyển và sử dụng hằng ngày.
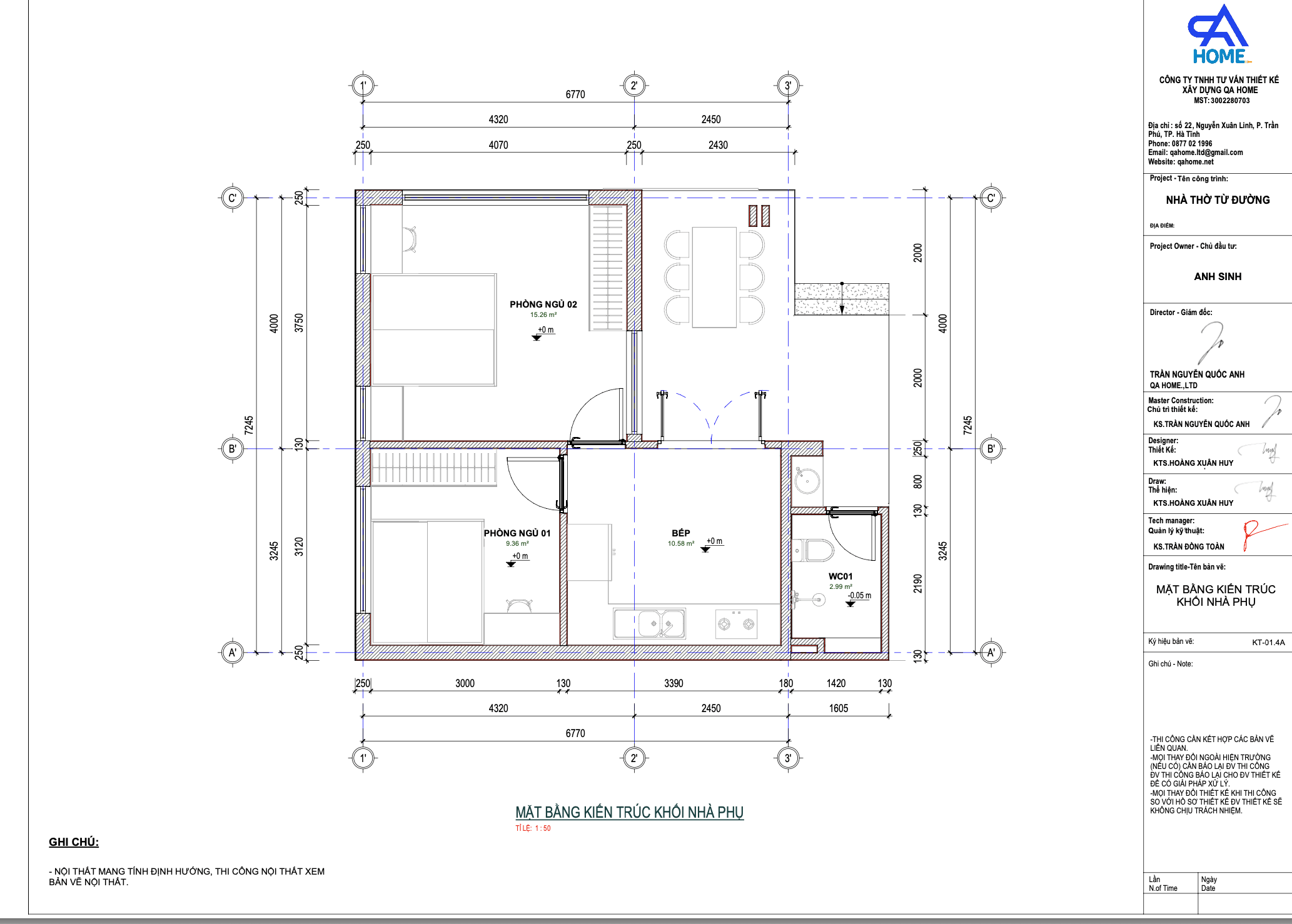
Khu nhà khách
Đây là khu vực dành riêng cho việc tiếp đón họ hàng, bạn bè, khách phương xa trong những dịp trọng đại của dòng tộc. Không gian được thiết kế lịch sự, trang nhã, đồng bộ với tổng thể kiến trúc chung.
Ngoài ra, khu này còn có thể linh hoạt sử dụng làm nơi lưu trú ngắn hạn hoặc tổ chức các buổi họp mặt gia đình. Từng chi tiết đều hướng đến sự tiện nghi, hiếu khách và gần gũi, phù hợp với phong cách sống truyền thống của người Việt.

Phong cách thiết kế
Công trình nhà từ đường kết hợp nhà ở của bác Sinh tại xã Thiên Cầm, Hà Tĩnh được QA HOME định hướng thiết kế theo phong cách truyền thống pha hiện đại, thể hiện sự giao hòa giữa giá trị văn hóa tâm linh lâu đời và tiện nghi sống hiện đại. Mỗi chi tiết trong công trình đều được tính toán kỹ lưỡng, đảm bảo vừa mang nét cổ kính, tôn nghiêm, vừa gần gũi và thân thuộc trong sinh hoạt thường ngày.
Kiến trúc truyền thống – linh hồn của ngôi nhà
Ngôi nhà được lấy cảm hứng từ kiến trúc nhà từ đường Bắc Trung Bộ, với mái ngói đỏ tươi, hàng cột gỗ chắc chắn, hệ kèo – bẩy – xà mang đậm dấu ấn Việt cổ. Mặt tiền đăng đối, tỷ lệ vàng được giữ chuẩn mực, tạo nên cảm giác bền vững, uy nghi và trang trọng – đúng tinh thần “nhà thờ họ”.
Các họa tiết chạm khắc gỗ được tinh giản, giữ được nét mộc mạc nhưng vẫn sang trọng, tượng trưng cho tấm lòng hiếu kính tổ tiên và niềm tự hào về nguồn cội.
Hiện đại và tiện nghi – đáp ứng nhu cầu sinh hoạt
Bên cạnh không gian tâm linh, khu nhà ở và nhà khách được thiết kế theo hướng mở, tối ưu ánh sáng và thông gió tự nhiên, tạo cảm giác thoáng đãng, dễ chịu quanh năm.
Các khu chức năng được bố trí khoa học, lối đi thông suốt giữa nhà ở – nhà khách – nhà từ đường, giúp việc sinh hoạt, đón tiếp họ hàng trở nên thuận tiện. Chất liệu hiện đại như kính, đá, gạch nung, gỗ tự nhiên được kết hợp tinh tế, tạo nên sự hài hòa giữa truyền thống và đương đại


QA Home – Kiến tạo tổ ấm từ trái tim, đồng hành bằng trách nhiệm
QA Home không chỉ là đơn vị thiết kế và thi công nội thất chuyên nghiệp, mà còn là người bạn đồng hành đáng tin cậy trong hành trình xây dựng tổ ấm mơ ước cho mỗi gia đình Việt. Với triết lý “Kiến tạo tổ ấm từ trái tim”, chúng tôi đặt cảm xúc và sự thấu hiểu khách hàng làm trung tâm trong mọi thiết kế. Mỗi công trình do QA Home thực hiện đều mang dấu ấn riêng, phản ánh phong cách sống, giá trị cá nhân và không gian sống lý tưởng của gia chủ.
Bên cạnh yếu tố thẩm mỹ, QA Home cam kết trách nhiệm từ khâu tư vấn đến thi công hoàn thiện, đảm bảo tiến độ, chất lượng và sự hài lòng tuyệt đối cho khách hàng. Chính sự tận tâm và trách nhiệm đó đã làm nên thương hiệu QA Home – nơi gửi gắm niềm tin để xây dựng không gian sống hạnh phúc và bền vững.
Nếu bạn cần thêm thông tin hoặc tư vấn chi tiết, hãy liên hệ với chúng tôi để được hỗ trợ tốt nhất! GỌI NGAY CHO CHÚNG TÔI nếu bạn đang tìm kiếm một giải pháp thiết kế nội thất hoàn hảo, hãy liên hệ với chúng tôi ngay hôm nay để được tư vấn và hỗ trợ tốt nhất!
Công ty TNHH Tư Vấn Thiết Kế & Xây Dựng QA Home
Địa chỉ trụ sở chính: Số 10A, Ngõ 2, Đ. Trần Phú, Phường. Thành Sen, Tỉnh. Hà Tĩnh
CN TP. HCM: 25/22 Tôn Thất Tùng, phường Bến Thành, TP. Hồ Chí Minh
CN Cẩm Xuyên: Số 240 Hà Huy Tập, Cẩm Xuyên, Hà Tĩnh
Đường dây nóng: 0877021996


