Công trình nhà 2 tầng mái Nhật hiện đại của Anh Chị Oanh Hoàng tại Phường Thành Sen, TP. Hà Tĩnh là một trong những thiết kế nổi bật do QA HOME thực hiện. Ngôi nhà mang phong cách hiện đại, sang trọng, kết hợp hài hòa giữa tỷ lệ hình khối tinh tế, vật liệu cao cấp và công năng tối ưu, tạo nên không gian sống tiện nghi và thẩm mỹ cho gia chủ. LIÊN HỆ NGAY ĐỂ ĐƯỢC ƯU ĐÃI
| Hạng mục | Thông tin chi tiết |
|---|---|
| Tên dự án | Mẫu nhà 2 tầng mái Nhật hiện đại – Anh Chị Oanh Hoàng |
| Chủ đầu tư | Anh Chị Oanh Hoàng |
| Địa điểm | Phường Thành Sen, Tỉnh Hà Tĩnh |
| Diện tích thiết kế | 8.8m x 17.55m |
| Tổng mức đầu tư | 1.5 tỷ đồng |
| Phong cách thiết kế | 2 tầng mái Nhật hiện đại |
| Gói thiết kế | Gói 01 – 150.000đ/m² và gói thiết kế nội thất phòng master |
| Thời gian khởi công | 10/2025 |
| Thời gian hoàn thành | 03/2026 |
| Công năng tầng 1 | Phòng khách, phòng bếp, phòng ngủ Master, WC, sân rửa, khu sân vườn, sân trước (kèm ảnh công năng tầng 1) |
| Công năng tầng 2 | Phòng thờ, 2 phòng ngủ, WC, sân phơi, ban công (kèm ảnh công năng tầng 2) |
| Đặc điểm kiến trúc | Thiết kế hiện đại, hình khối cân đối, mái Nhật dốc nhẹ, màu sắc trang nhã, sử dụng vật liệu hiện đại như kính, gạch ốp trang trí. |
| Ưu điểm nổi bật | – Phối cảnh sang trọng, thoáng mát. – Bố trí công năng khoa học, thuận tiện sinh hoạt. – Không gian sống tiện nghi, gần gũi thiên nhiên. – Thiết kế hợp phong thủy, thẩm mỹ cao. |
1. Kiến trúc tổng thể công trình
Ngôi nhà 2 tầng mái Nhật hiện đại của Anh Chị Oanh Hoàng được thiết kế và triển khai bởi Công ty TNHH Tư vấn Thiết kế Xây dựng QA HOME – đơn vị uy tín hàng đầu tại Hà Tĩnh chuyên thực hiện các công trình dân dụng cao cấp. Với diện tích 8.8m x 17.55m, ngôi nhà là sự kết hợp hoàn hảo giữa kiến trúc hiện đại, vật liệu bền vững và phong cách sống tinh tế của gia chủ.
Công trình không chỉ đảm bảo đầy đủ công năng sử dụng, mà còn thể hiện gu thẩm mỹ sang trọng, tỉ mỉ và chuẩn mực trong từng chi tiết – một nét đặc trưng trong triết lý thiết kế của QA HOME: “Đẹp trong từng đường nét – Bền vững theo thời gian.”
>>>>> Xem thêm: Dự án thiết kế nhà phố khác do QA HOME thiết kế

Phong cách mái Nhật hiện đại – vẻ đẹp tinh giản mà thanh thoát
Ngôi nhà được thiết kế theo phong cách mái Nhật hiện đại, xu hướng đang được ưa chuộng tại Việt Nam những năm gần đây. Điểm đặc trưng của hệ mái này là độ dốc nhẹ, thanh thoát, đua mái rộng, không chỉ tạo cảm giác cân đối, nhẹ nhàng mà còn giúp thoát nước nhanh, chống đọng mưa, chống thấm hiệu quả – phù hợp hoàn hảo với điều kiện khí hậu miền Trung.
Hệ mái sử dụng ngói màu đen ghi cao cấp, nổi bật trên nền tường sáng, tạo hiệu ứng thị giác mạnh mẽ mà vẫn sang trọng. Kết cấu mái được thi công chắc chắn với xà gồ sắt hộp 70x140mm, cầu phong 50x100mm và li tô 30x30mm, đảm bảo khả năng chịu tải, chống võng và tăng tuổi thọ công trình. Đường viền mái được thiết kế tinh gọn, bo nhẹ phần góc tạo cảm giác thanh mảnh, đồng thời làm nổi bật khối mái chính phía trên tầng 2 – yếu tố nhận diện đặc trưng của nhà mái Nhật.

Bố cục hình khối hài hòa – Tỷ lệ cân xứng
Nhìn từ mặt tiền, công trình gây ấn tượng bởi sự cân bằng giữa khối đặc và khối rỗng, giữa đường ngang mạnh mẽ của mái và các mảng đứng tinh tế của hệ cửa kính. Mỗi khối kiến trúc đều được QA HOME tính toán theo tỷ lệ vàng, tạo nên bố cục gọn gàng, vững chãi nhưng vẫn mang nét mềm mại đặc trưng của nhà ở hiện đại.
Phần chân công trình được ốp gạch granite giả đá xám nhạt, vừa chống bám bẩn vừa làm nền vững chắc cho khối tường trắng phía trên. Sự kết hợp giữa đường chỉ âm trang trí 20x20mm chạy ngang thân nhà và các mảng ốp lam nhựa giả gỗ giúp mặt đứng có chiều sâu, đồng thời tạo hiệu ứng ánh sáng – bóng đổ tự nhiên vào ban ngày.
>>>>>> Xem thêm: Các dự án thiết kế của QA Home

Màu sắc và vật liệu – Sự kết hợp tinh tế của hiện đại và tự nhiên
Toàn bộ công trình sử dụng tông màu trắng sáng làm chủ đạo, kết hợp điểm nhấn màu nâu gỗ và xám ghi – tạo cảm giác nhẹ nhàng, thanh lịch nhưng vẫn ấm cúng.
Lớp sơn nước ngoại thất kháng kiềm cao cấp giúp bề mặt tường luôn tươi mới và sạch sẽ dưới điều kiện nắng gió khắc nghiệt của Hà Tĩnh. Các chi tiết ốp lam nhựa giả gỗ ngoài trời không chỉ tạo điểm nhấn thị giác mà còn tăng khả năng cách nhiệt, chống ẩm và chống nứt nẻ bề mặt.

Hệ cửa nhôm kính Xingfa cao cấp được bố trí dày đặc ở cả mặt tiền và các hướng phụ, đảm bảo lấy sáng – đón gió – thông khí tự nhiên tối đa. Kính cường lực dày 10mm kết hợp khung nhôm màu đen mờ mang lại vẻ hiện đại, bền chắc và tinh tế.
Ban công tầng 2 sử dụng lan can kính cường lực kết hợp khung nhôm, cho phép mở rộng tầm nhìn và tạo cảm giác nhẹ nhàng, thoáng đãng. Sự giao thoa giữa vật liệu truyền thống (ngói, lam gỗ) và vật liệu hiện đại (kính, nhôm) giúp công trình đạt được sự cân bằng thẩm mỹ hoàn hảo, vừa gần gũi vừa sang trọng.
Không gian nội thất phòng ngủ Master – Sang trọng và tinh tế
Phòng ngủ master trong công trình nhà 2 tầng mái Nhật hiện đại của Anh Chị Oanh Hoàng được QA HOME thiết kế với phong cách hiện đại tối giản (Modern Minimalist), chú trọng đến sự cân bằng giữa công năng – ánh sáng – thẩm mỹ. Không gian mang tông màu trung tính chủ đạo gồm xám, trắng và nâu gỗ, tạo cảm giác ấm áp, thư giãn, đồng thời tôn lên vẻ sang trọng, tinh tế của tổng thể ngôi nhà.
Toàn bộ tường phòng được ốp phào chỉ dọc kết hợp ốp veneer giả đá, tạo chiều sâu và điểm nhấn nhẹ nhàng cho không gian nghỉ ngơi. Hệ cửa sổ lớn bằng kính cường lực khung nhôm đen giúp căn phòng đón trọn ánh sáng tự nhiên, mở rộng tầm nhìn ra khu sân vườn xanh mát, mang lại cảm giác gần gũi thiên nhiên và thoáng đãng.
>>>>> Xem thêm: Thiết kế nội thất nhà ở QA HOME

Giường ngủ bọc nỉ cao cấp được đặt ở vị trí trung tâm, phần đầu giường phối hợp tinh tế giữa mảng tường ốp nẹp chỉ đen và chi tiết decor tròn kim loại ánh vàng, mang đến vẻ đẹp hiện đại pha chút sang trọng. Bộ chăn ga, gối đệm màu ghi sáng hài hòa với tổng thể, giúp không gian trở nên nhẹ nhàng và thư thái hơn.
Đối diện giường là hệ tủ quần áo âm tường cánh kính uốn cong, được thiết kế cao kịch trần, giúp tối ưu diện tích và tăng không gian lưu trữ. Cánh tủ kính mờ sọc kết hợp khung viền nhôm ánh champagne, vừa tạo cảm giác sang trọng, vừa giúp đồ đạc được sắp xếp gọn gàng mà vẫn thoáng thị giác. Hệ đèn LED âm tủ mang ánh sáng vàng ấm, khiến không gian trở nên lung linh, ấm cúng khi về đêm.

Góc làm việc được bố trí gọn gàng bên khung cửa sổ, với bàn gỗ công nghiệp phủ veneer tối màu, kết hợp ghế xoay hiện đại và đèn bàn kiểu dáng tối giản. Mặt bàn đủ diện tích cho laptop và phụ kiện làm việc, đồng thời được trang trí nhẹ nhàng bằng lọ hoa tươi và tranh treo tường nghệ thuật, tạo cảm hứng sáng tạo trong không gian riêng tư.
Trần và sàn phòng ngủ cũng được chăm chút kỹ lưỡng. Trần phẳng sơn trắng kết hợp đèn LED âm trần cho ánh sáng nhẹ dịu, tạo cảm giác yên bình. Sàn gỗ công nghiệp màu nâu trầm được lát đều toàn bộ phòng, mang đến sự ấm áp và tự nhiên khi sử dụng. Các góc phòng đều được tận dụng hợp lý, không thừa chi tiết, thể hiện triết lý thiết kế “ít mà tinh tế” của QA HOME.

Tổng thể không gian nội thất phòng ngủ master là sự hòa quyện hoàn hảo giữa tính thẩm mỹ hiện đại, tiện nghi và cảm xúc nghỉ ngơi yên bình. Mỗi đường nét, mỗi gam màu đều được tính toán kỹ lưỡng nhằm tạo nên một không gian riêng tư đẳng cấp, thoải mái và tràn đầy cảm hứng sống cho gia chủ.
2. Bố trí công năng sử dụng hợp lý và tối ưu
Thiết kế được QA HOME triển khai theo nguyên tắc phân chia công năng khoa học, giao thông thuận tiện, tối ưu tiện nghi và thông gió tự nhiên.
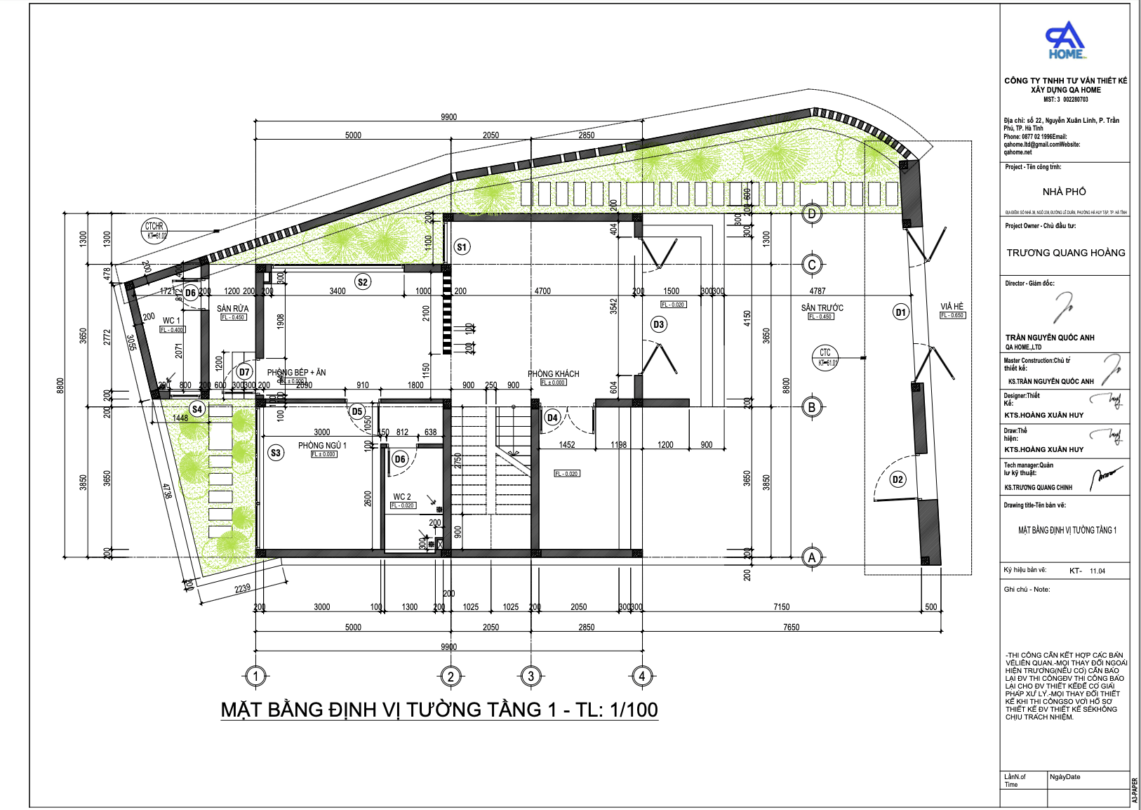
Tầng 1:
Không gian tầng 1 bao gồm phòng khách, phòng bếp – ăn, phòng ngủ master, 2 WC, sân rửa, sân trước và khu vườn tiểu cảnh.
-
Phòng khách: Nằm ở vị trí trung tâm, ngay gần cửa chính, được bố trí rộng rãi, thoáng sáng với hệ cửa nhôm kính lớn mở ra sân trước. Nền phòng lát gạch granite 800x800mm, len chân tường cao 100mm giúp không gian sang trọng, sạch sẽ.
-
Phòng bếp – ăn: Liên thông với phòng khách, thiết kế mở, đảm bảo sự gắn kết giữa các thành viên trong gia đình. Khu vực này được bố trí hệ cửa sổ mở ra sân rửa, giúp không khí lưu thông và giảm mùi trong quá trình nấu nướng.
-
Phòng ngủ Master: Bố trí cuối nhà, yên tĩnh và riêng tư, có cửa sổ hướng ra sân vườn, tạo cảm giác thư thái. Phòng có WC khép kín và không gian lưu trữ tiện nghi.
-
WC 1 và WC 2: Sàn lát gạch chống trượt 300x600mm, tường ốp gạch toàn phần, sử dụng thiết bị vệ sinh cao cấp. Độ cao sàn thấp hơn nền chính từ 20–40mm để đảm bảo thoát nước.
-
Sân rửa và sân trước: Được lát đá granite chống trơn, bố trí phễu thu âm sàn, lớp chống thấm Sika vén tường cao 300mm, chống thấm tuyệt đối, bền bỉ theo thời gian.
-
Khu sân vườn nhỏ: Trồng cây xanh, tiểu cảnh, kết hợp lối lát đá 300x600mm xen kẽ thảm cỏ, mang lại không gian thư giãn cho gia chủ.

Tầng 2:
Không gian tầng 2 được bố trí gồm phòng thờ, hai phòng ngủ, WC chung, sân phơi và ban công thoáng mát.
-
Phòng thờ: Đặt phía trước, hướng ra ban công, đảm bảo phong thủy, trang nghiêm và đón gió tự nhiên.
-
Hai phòng ngủ phụ: Diện tích cân đối, mỗi phòng đều có cửa sổ lớn lấy sáng, tạo không gian riêng tư, yên tĩnh.
-
WC chung: Thiết kế đầy đủ tiện nghi, ốp gạch 300x600mm, trần thạch cao chống ẩm, sử dụng thiết bị vệ sinh cao cấp.
-
Ban công: Lát gạch chống trơn 600x600mm, lan can kính cường lực và tay vịn inox. Khu vực này là nơi lý tưởng để thư giãn, ngắm cảnh.
-
Sân phơi: Thiết kế kín đáo, thuận tiện sử dụng, nền chống trượt, có hệ thống thoát nước riêng.

3. Vật liệu hoàn thiện và chi tiết kiến trúc
Công trình sử dụng hệ vật liệu hiện đại, được lựa chọn kỹ lưỡng để đảm bảo cả yếu tố thẩm mỹ, độ bền và công năng:
-
Tường ngoài: Sơn nước ngoại thất cao cấp 2 lớp, kháng kiềm, kết hợp mastic chống nứt. Một số mảng nhấn được ốp lam nhựa giả gỗ giúp tăng điểm nhấn và chống bám bẩn.
-
Tường trong nhà: Sơn nội thất 2 lớp, bề mặt mịn, màu sắc hài hòa.
-
Sàn tầng 1: Lát gạch granite 800x800mm sáng màu, sang trọng, dễ vệ sinh.
-
Sàn tầng 2: Kết hợp sàn nhựa giả gỗ trong phòng ngủ, gạch 600x600mm cho khu sinh hoạt và ban công.
-
Trần thạch cao: Khu vực chính (phòng khách, bếp, phòng ngủ) sử dụng trần phẳng TR1, khu phụ không đóng trần (TR2), khu ngoài trời ốp trần nhựa giả gỗ TR3 giúp tăng độ bền và chống ẩm mốc.
-
Cầu thang: Bậc xây gạch đinh, ốp đá granite tự nhiên, lan can kính cường lực 10mm với tay vịn gỗ sồi, tạo cảm giác hiện đại và sang trọng.
-
Cửa đi, cửa sổ: Hệ nhôm Xingfa kính cường lực dày 8–10mm, màu đen ghi, độ bền cao, chống ồn và cách nhiệt tốt.
-
Hệ thống chiếu sáng: Kết hợp đèn âm trần, đèn hắt khe, đèn treo tường theo phong cách hiện đại, tiết kiệm điện và đảm bảo tính thẩm mỹ.
-
Sân vườn: Ốp đá 300x600mm, xen kẽ bồn cây và lối đi, tạo cảnh quan gần gũi tự nhiên.

4. Giải pháp kỹ thuật và công nghệ thi công
Công trình áp dụng các giải pháp kỹ thuật tiên tiến nhằm nâng cao độ bền và an toàn sử dụng:
-
Nền móng: Được thi công theo quy trình kỹ thuật, nền đất đầm chặt, đổ bê tông lót đá 4×6 M100, vữa lót M75 dày 30mm.
-
Chống thấm: Toàn bộ sàn vệ sinh, sân thượng, ban công đều được chống thấm Sika, lớp chống thấm phủ lên tường tối thiểu 300mm, đảm bảo tuyệt đối không thấm dột.
-
Thoát nước mái: Bố trí âm tường, có độ dốc chuẩn kỹ thuật, thoát nước nhanh, không đọng nước.
-
Hệ thống điện nước: Thiết kế đi ngầm trong tường, sàn và trần, đảm bảo an toàn và tính thẩm mỹ.
-
Kết cấu: Sử dụng bê tông cốt thép chịu lực cao, tuân thủ tiêu chuẩn thiết kế TCVN.
-
Thông gió – chiếu sáng: Hệ thống cửa mở đối lưu, giếng trời trung tâm và khe thoáng đảm bảo không gian luôn thông khí tự nhiên, giảm chi phí điều hòa, chiếu sáng.

QA Home – Kiến tạo tổ ấm từ trái tim, đồng hành bằng trách nhiệm
QA Home không chỉ là đơn vị thiết kế và thi công nội thất chuyên nghiệp, mà còn là người bạn đồng hành đáng tin cậy trong hành trình xây dựng tổ ấm mơ ước cho mỗi gia đình Việt. Với triết lý “Kiến tạo tổ ấm từ trái tim”, chúng tôi đặt cảm xúc và sự thấu hiểu khách hàng làm trung tâm trong mọi thiết kế. Mỗi công trình do QA Home thực hiện đều mang dấu ấn riêng, phản ánh phong cách sống, giá trị cá nhân và không gian sống lý tưởng của gia chủ.
Bên cạnh yếu tố thẩm mỹ, QA Home cam kết trách nhiệm từ khâu tư vấn đến thi công hoàn thiện, đảm bảo tiến độ, chất lượng và sự hài lòng tuyệt đối cho khách hàng. Chính sự tận tâm và trách nhiệm đó đã làm nên thương hiệu QA Home – nơi gửi gắm niềm tin để xây dựng không gian sống hạnh phúc và bền vững.
Nếu bạn cần thêm thông tin hoặc tư vấn chi tiết, hãy liên hệ với chúng tôi để được hỗ trợ tốt nhất! GỌI NGAY CHO CHÚNG TÔI nếu bạn đang tìm kiếm một giải pháp thiết kế nội thất hoàn hảo, hãy liên hệ với chúng tôi ngay hôm nay để được tư vấn và hỗ trợ tốt nhất!
Công ty TNHH Tư Vấn Thiết Kế & Xây Dựng QA Home
Địa chỉ trụ sở chính: Số 10A, Ngõ 2, Đ. Trần Phú, Phường. Thành Sen, Tỉnh. Hà Tĩnh
CN TP. HCM: 25/22 Tôn Thất Tùng, phường Bến Thành, TP. Hồ Chí Minh
CN Cẩm Xuyên: Số 240 Hà Huy Tập, Cẩm Xuyên, Hà Tĩnh
Đường dây nóng: 0877021996


